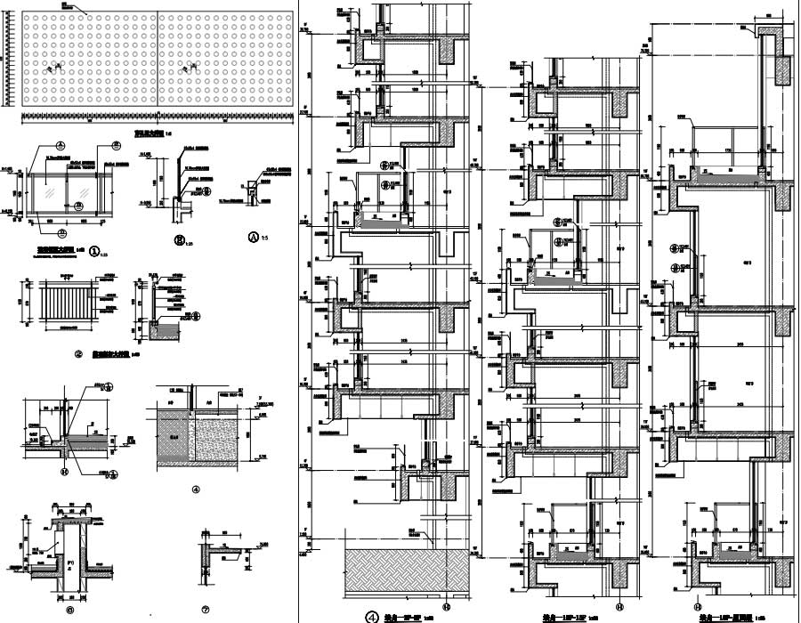
说明:某地块创意产业园项目(PDF版),使用功能主要为研发厂房、商业及车库、设备用房,地下一层、一层、二层主要为车库、商业及设备用房,三层为架空绿化,4层及以上为研发厂房,建筑层数为19~22层不等。地下1层设有人防工程。地块总建筑面积:146903.55㎡,其中,3栋-A、B、C座的高度均为70.4m,地上19层,功能为研发厂房。4栋-A座的高度为70.9m,地上19层,功能为研发厂房。4栋-B座的高度为82.2m,地上22层,功能为研发厂房。图纸内容含建筑总说明、构造表、绿色建筑专篇、总平面图、节能说明、地下战,平时平面图、建筑平,立,剖面图、口部大样、固定电站大样、人防门详图、墙身,节点,楼梯,坡道,卫生间及门窗大样等及面积比例计算报告、日照解释分析、交通分析图和结构说明、人防说明、预应力高强混凝土管桩桩基说明、楼梯构造通用图及说明、基础平面布置图及基础承台详图、筏板基础节点详图、墙柱定位图、墙柱配筋图、底板平面布置及配筋图、梁配筋图、平面布置及板配筋图、坡道结构详图、楼梯详图、节点详图、人防口部及楼梯大样等及装饰性构件比例计算书、节能电梯参数和给排水说明、给排水总平面、给排水专业施工图及设计说明、水系统规划方案及非传统水源利用方案、雨水回用系统图、各层用水点用水压力计算表、节水率计算书等和电气专业施工图及设计说明、照明功率密度计算书和建筑围护结构的热工计算书、暖通专业施工图及设计说明、风机单位风量耗功率计算书、室外风环境模拟分析报告、建筑防结露分析计算书、内表面温度计算书和景观专业施工图及设计说明、种植施工图、苗木表、景观水电设计说明和室内背景噪声计算书及建筑构件隔声性能分析报告、全部使用预拌混凝土及商品砂浆比例证明文件、高强度钢筋比例计算书、自然采光模拟分析报告、建筑形体规则性判定报告等。主要包含1 基本材料、2 规划材料、3 建筑设计图纸含结构图纸、4 景观设计图纸、5 暖通设计图纸、6 给排水设计图纸、7 电气设计图纸、8 其他材料等8部分以及效果图。








打开系统设
执行注册

