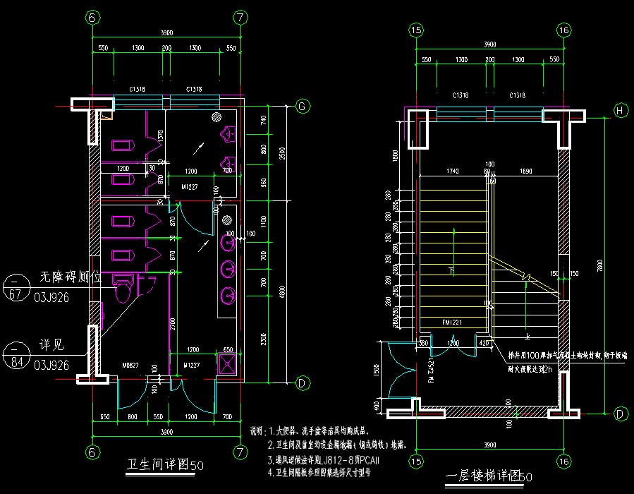
说明:该项目为黑龙江某生态园建设项目(老年公寓),地上11层,地下1层,建筑总高度41.1米,总建筑面积13430.16平方米,结构形式为框架结构,设计使用年限50年。图纸包括建筑设计说明,平立剖面图,楼梯详图,节点详图;结构设计说明,桩定位图,地沟布置图,各层柱墙配筋、梁配筋、板配筋图,楼梯详图,节点详图;给排水设计说明,各层给排水、喷淋平面图,给水系统图,排水系统图,消防系统图;供暖设计说明,各层供暖平面图,供暖系统图;电气设计说明,各层照明、插座及配电干线、弱电、网络电话平面图,消防联动平面图,低压配电系统图,竖向干线系统图,火灾自动报警及消防排烟联动控制系统图,电话及网络配线系统图等。








打开系统设
执行注册

