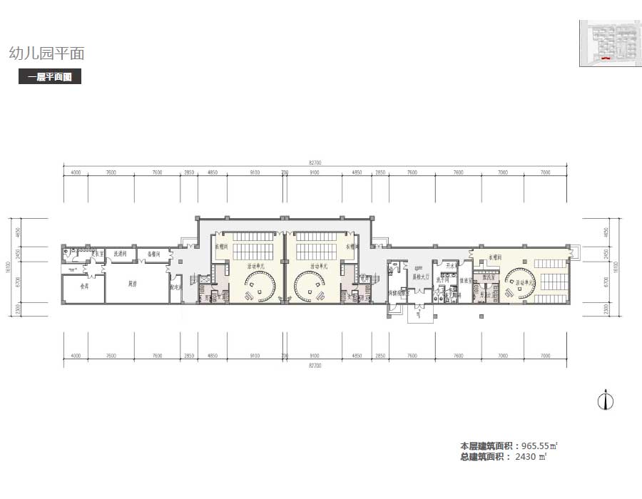
说明:某住宅区项目方案设计,项目实用地面积76475.907平方米,总建筑面积263279.73平方米,建筑密度:20%,容积率:2.5,绿地率:35%。图纸内容含:城市印记、区位分析、交通分析、周边现状、四界分析、用地分析、总地块经济技术指标、设计理念-秩序、归属、规划轴线、视觉通廊、景观分析、户型分布、配套分析、交通分析、消防分析、停车分析、地下车库平面、间距分析、日照分析、天际线分析、住宅平面、住宅剖面、幼儿园平面、小学场地分析、小学平面图、物业管理用房平面、配套平面图、项目鸟瞰图、社区大堂效果图、小学效果图、幼儿园效果图、住宅南立面图、住宅北立面图、住宅入户门头效果图、立面材质分析、绿色建筑、海绵城市、装配式建筑。








打开系统设
执行注册

