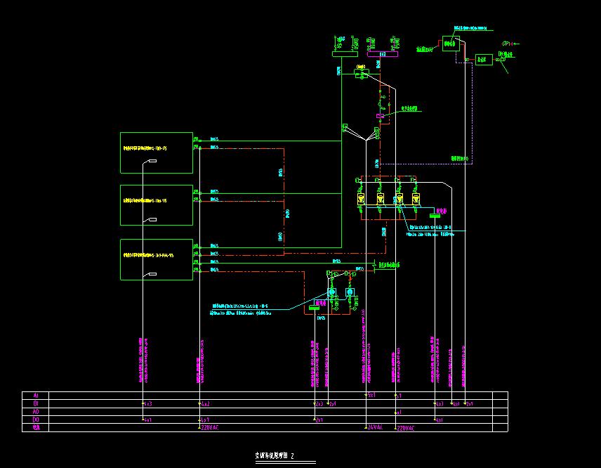
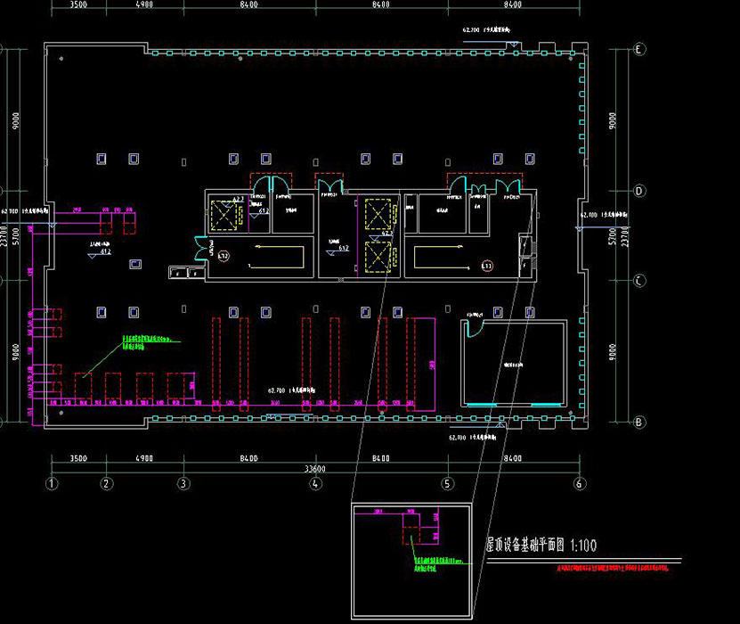
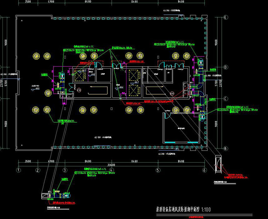
说明:本项目为某青年职业中专学校改扩建工程,共包括地下三层车库,地上两个吊层,功能也为车库,地上共十六层,均为宿舍和办公用房,总建筑面积为20539平方米(其中地上建筑面积14485平方米,地下建筑面积6054平方米),图纸包含:设计总说明,加压送风原理图,主要设备材料表,空调系统原理图,设备大样图,通风及防排烟平面图,空调风系统平面图,空调水系统平面图,屋顶层通风及防排烟平面图,屋顶层空调水系统平面图,屋顶设备基础平面图,BAS设计总说明,BAS系统主要设备材料表,空调BAS控制系统图,空调系统原理图,空调BAS系统平面图,屋顶层空调BAS系统平面图,战时通风设计及施工说明,战时通风口部大样图、主要设备材料表,战时通风方式转换原理图,战时通风设备安装大样图,负三层防空地下室战时平面图








打开系统设
执行注册

