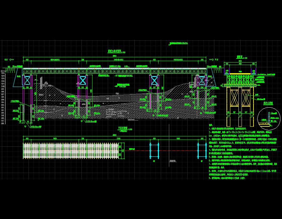
说明:该项目为某市示范性学校(乌当校区)1、2号道路及附属工程市政、桥梁及钢便桥施工图,其中,拟建钢便桥设计荷载:设计车辆荷载为80T(纵向轴距1.95m 4.5m 1.3m、轴重100kN 100kN 300kN 300kN、横向轮距1.8m),按一个车辆荷载控制验算、故同时只能有一个辆车在便桥范围内运行;设计行车速度:10km/h;设计使用年限:2年;桥面宽度:6m=1m人行道 4m车行道 1m人行道。1、2号道路及附属工程,道路的建设主要服务于学校师生及其他工作人员出入学校。该道路是园区对外联系的主要进出道路,主要依靠1、2号路来承担校区对外的交通转换。其中,1号道路全长1230m,2号道路全长326.5m。规划路幅9.5米宽(0.5m设施带 0.25m路缘带 6.5m车行道 0.25m路缘带 2m人行道),双向2车道,按城市支路等级设计,设计车速20km/h,采用沥青混凝土路面。图纸内容含:1、2号道路及附属工程,设计说明、区域位置图、道路总平面图、道路分幅设计图、纵断面分幅设计图、道路标准横断面图、路面结构图、人行道路缘石大样图、土石方横断面、边坡防护设计图、边沟大样图、人行道栏杆大样图、人行道无障碍设计图、盲道大样图、道路标线大样图、一般路基设计图、特殊路基处理图(填挖交界处治图)、挡墙平面图、挡墙立面图、挡墙剖面图、挡墙大样图、挡墙工程数量表、逐桩坐标表、直线曲线及转角表、竖曲线设计表、路基设计表、占地、坐标及面积表、土石方数量表、清表工程数量表、护坡面积数量表、路面工程数量表、道路挡墙工程施工图设计说明、挡墙平面图、挡墙立面图、挡墙剖面图、挡墙大样图、排水设计说明、排水主要工程数量表、1号路及2号路标准横断面图、1号路排水平面图、1号路雨水纵断面图、2号路雨水纵断面图、雨水暗井大样图、管道沟槽开挖断面图、偏沟式雨水口大样图、联合式雨水口大样图、雨水口加固图大样图、铸铁双层井盖支座、沉砂池大样图、塑料管接口大样图、防坠网大样图、钢便桥设计说明、桥位平面布置图、桥型立面布置图、桥墩一般构造图、贝雷梁桁架构造图等及1号桥、2号桥、礼仪天桥部分施工图。








打开系统设
执行注册

