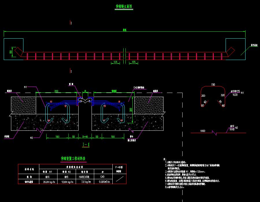
说明:该项目为某街道长征桥工程桥梁、硬化、道路部分设计施工图,全长107.059米,其中桥梁长69.8米、路基长度37.259米。桥位区域地形陡峭,地面起伏较大,相对高差约12m,地表坡度最陡约70°。综合考虑地形、地貌及地质条件,且整体风格需与现有人行桥保持一致,桥梁采用主跨为39.9m的上承式钢筋混凝土板拱桥,拱上采用矩形横墙,桥面板采用现浇连续板,桥墩为墙式墩,重力式U台,扩大基础。设计标准:道路等级:四级公路;设计荷载:公路-Ⅱ级;桥宽:0.4m(护栏) 6.7m(行车道) 0.4m(护栏)=7.5m;车道数:双向两车道;设计车速度:15km/h;设计洪水频率:1/50;洪水位:251.880m;地震动峰值加速度系数:0.05g;结构重要性系数:1.1;防撞护栏等级:A级;图纸内容含:施工图设计说明、主要工程数量表、桥位平面图、总体布置图、基础放样坐标表、主拱圈一般构造图、主拱圈钢筋布置图、拱上建筑构造图、拱上横墙钢筋布置图、垫墙及实腹段钢筋布置图、拱座一般构造图、拱座承台钢筋布置图、拱座桩基钢筋布置图、现浇连续板一般构造图、现浇连续板钢筋布置图、现浇连续板支座及锚栓构造图、桥墩一般构造图、桥墩钢筋布置图、桥墩扩大基础钢筋布置图、桥台一般构造图、台帽及挡块钢筋布置图、支座垫石钢筋布置图、桥面铺装构造图、搭板一般构造图、搭板钢筋布置图、伸缩缝构造图、防撞护栏构造图、桥面排水构造图、拱桥上部结构施工概略流程图、技术指标及工程数量汇总表、项目地理位置图、路线说明、路线平、纵面缩图、路线平面示意图、路线纵断面示意图、路基说明、路基标准横断面图、一般路基设计图、软基处理设计图、护肩护脚设计图、挡土墙一般构造图、挡墙基础处理设计图、仰斜式路肩挡墙设计图、重力式路肩挡墙设计图、衡重式路肩挡墙设计图、衡重式路堤挡墙设计图、仰斜式路堑挡墙设计图、护面墙设计图、路基排水设计图、错车道、回车场设计图、路面说明、水泥混凝土路面结构设计图、沥青混凝土路面结构设计图、泥结碎石路面结构设计图、钢筋混凝土管涵一般布置图、钢筋混凝土管节构造图、盖板涵一般构造图、盖板涵钢筋构造图、盖板涵涵台尺寸及数量表、石拱涵一般布置图、石拱涵尺寸表及工程数量表、水力资料及地基应力表、交通安全设施说明、安全设施布设横断面图、标志板面设计图、标志结构设计图、交通安全设施平面布置图(示例)等等。








打开系统设
执行注册

