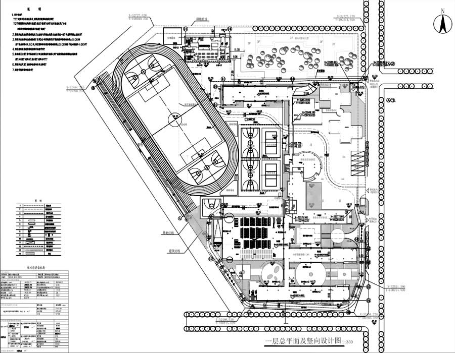
说明:该项目为某学校扩建工程全专业PDF版施工图(含计算书、节能计算书和模型、土壤氡浓度检测报告、日照模拟图、环评报告书及批复等),该套图纸为PDF版。项目由教学楼、综合服务楼、体艺楼等主要建筑物组成,以及看台及若干运动场地,整个学校扩建为72个班的九年一贯制学校,编制共计3420人,本次扩建50个班。抗震设防烈度为7度,主要结构形式为钢筋混凝土框架结构、钢筋混凝土框架剪力墙结构。其中,教学楼建筑高度为23.5米,地上层数6层;综合服务楼建筑高度为41.4米,地上层数12层;体艺楼建筑高度为22.7米,地上层数3层;项目新建总建筑面积为41876.6平方米。图纸内容含:建筑说明,平面图,立面图,剖面图,楼梯详图,卫生间详图,门窗详图,墙身详图;给排水说明,给排水系统图,消防给水系统图,给排水、消防平面图,虹吸雨水系统图,卫生间给排水大样图,雨水回收与利用工艺流程图;结构说明,屋面平面布置图,檀条平面布置图,网架腹杆安装图,网架下弦安装图,网架买件平面布置图,配筋大样图,结构平面图,楼板配筋图楼梯结构图;电气说明,电器总平面图,照明总平面图,广播总平面图,电力平面图,照明平面图,强电平面图防雷平面图,电井大样图,综合布线系统图,校园广播系统图,电气火灾监控系统图,智能照明控制系统图,智能化配电箱系统图;暖通说明,通风及防排烟平面图,加压送风系统原理图。景观设计说明,种植施工图,场地铺装图,苗木表等等。专业包括建筑、结构、给排水、电气、采暖通风、景观。








打开系统设
执行注册

