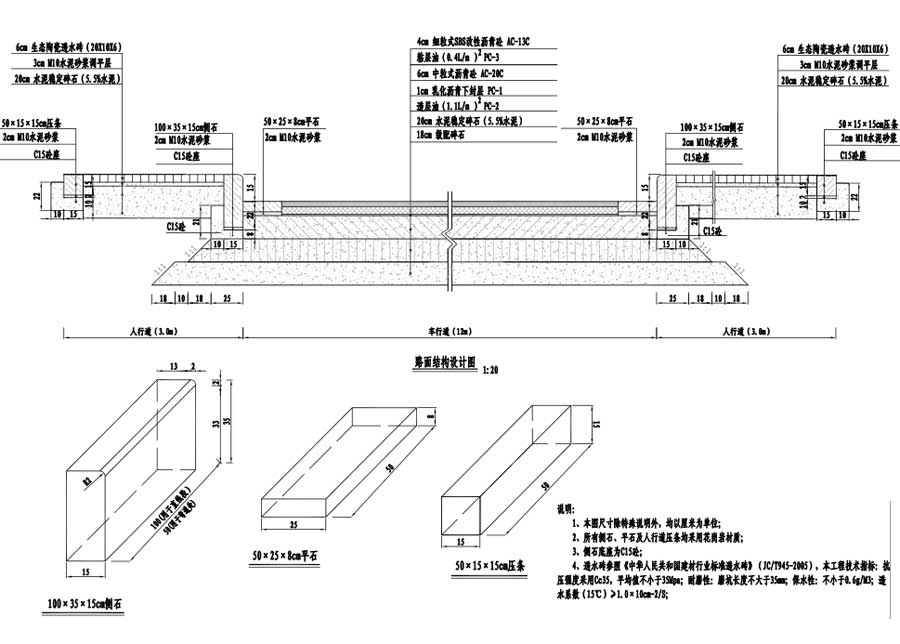
说明:某工业园区道路工程,道路全长为733.817m,道路宽度为18m,设计速度为20Km/h,道路等级为城市支路。图纸内容含设计说明、项目地理位置图、道路总体设计图、道路平面设计图、道路标准横断面设计图、道路纵断面设计图、直线、曲线及转角表、纵坡、竖曲线表、逐桩坐标表、道路用地图、清表回填与破除工程数量表、砍树挖根数量表、路基设计表、一般路基设计图、路基土石方(横断面设计图、数量计算表)、不良路基处理(数量表、平面图、设计图)、路面工程数量表、新老路面链接方式图、路面结构设计图、人行道铺装图、路基防护设计图、树池设计详图、无障碍设计大样图、交通工程说明书、交通标志标线(工程数量表、平面图)、交通工程标准横断面图、交通标准牌版面设计图、交通标线大样图、单柱式标志结构设计图、单悬臂式标志结构设计图、排水工程说明、排水系统图、排水工程数量表、管道综合横断面图、雨水,污水,排水管道横,纵断面图、雨水,污水,排水管道平面设计图、雨水,污水管道检查井表、井筒安全设计图、混凝土基础设计图、雨水管道开挖设计图、污水管道开挖图、交汇井大样图、管道上下交叉加固图、照明说明书、照明设计材料表、管线综合标准横断面图、道路照明平面图、双挑路灯设计大样图、路灯基础大样图、路灯手孔井大样图、绿化说明书、绿化工程数量表、绿化标准横断面图、绿化种植平面图等。








打开系统设
执行注册

