
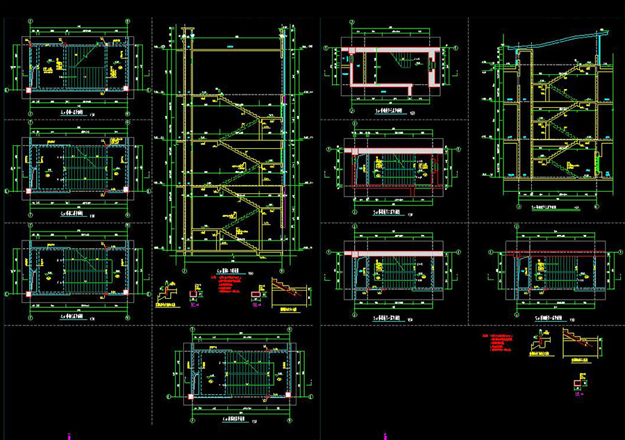
说明:某大厦项目,地上25层,地下3层,主体高度为99.8m,框架核心筒结构,桩基础(钻孔灌注桩),抗震设防烈度为7度;图纸包含:结构设计总说明,桩位平面布置图,挤扩支盘灌注桩详图,承台基础平面图,承台详图,桩筏详图,基础梁结构平面图,基础板结构平面图,各层梁板平法施工图,地下室外墙详图,柱墙平法施工图,核心筒详图,汽车坡道平面图,剖面图,自行车坡道详图,楼梯平面图,楼梯剖面图,楼梯详图等
说明:某大厦项目,地上25层,地下3层,主体高度为99.8m,框架核心筒结构,桩基础(钻孔灌注桩),抗震设防烈度为7度;图纸包含:结构设计总说明,桩位平面布置图,挤扩支盘灌注桩详图,承台基础平面图,承台详图,桩筏详图,基础梁结构平面图,基础板结构平面图,各层梁板平法施工图,地下室外墙详图,柱墙平法施工图,核心筒详图,汽车坡道平面图,剖面图,自行车坡道详图,楼梯平面图,楼梯剖面图,楼梯详图等
图纸模型网站的所有资源,均来源于用户上传、互联网收集等,版权归属原作者、原出处所有。本网站的相关资源仅供用户学习交流之用,请勿用做商业目的。若无意中侵犯到您的版权利益,敬请来信联系我们。请尽可能提供详细准确的信息,我们在收到您的说明文书后,会尽快予以处理。
用户通过“图纸模型 - 有奖上传 - 上传”功能,将文件、说明等提交到平台。平台的工作人员会进行初步审核及信息完善,然后根据质量、稀缺度等设定相应的积分、人民币价格,并上架到相应的分类中,供用户下载。只要资源被审核上架,平台就会对上传人进行一定的积分奖励。上架的资源被下载后,上传者还将持续获得下载人支付积分、人民币的一半收益。平台及相关专家,也会对优秀的资源进行重点推荐宣传等,促使上传者获得更多的收益。
鉴于部分用户会通过支付人民币下载资源,建议上传者尽早进行实名认证(含提现信息),方便上传者在获得人民币收益后快捷提现。若上传者没有及时进行实名认证等,可能会出现人民币收益受损,敬请知晓。
用户购买图纸模型资源下载完成后,可随时在本地进行查看、修改、复制等操作。鉴于网络服务的特殊性,已上架的资源在某些意外情况下也可能会下架,但只要还在上架中,用户就可以在一年内、任意设备上重新下载已花费人民币或积分购买的图纸模型资源。 由于图纸模型资源均来源于用户上传、互联网收集等,即使平台建立资源初审制度,但也无法对资源质量等做绝对的保证。如果用户对下载的资源有任何意见及建议,敬请到资源列表中进行点评,进一步提高本版块的资源品质。
本服务规则为暂行规则,官方将根据具体情况不断总结完善。
以上服务规则的最终解释权归本平台所有。