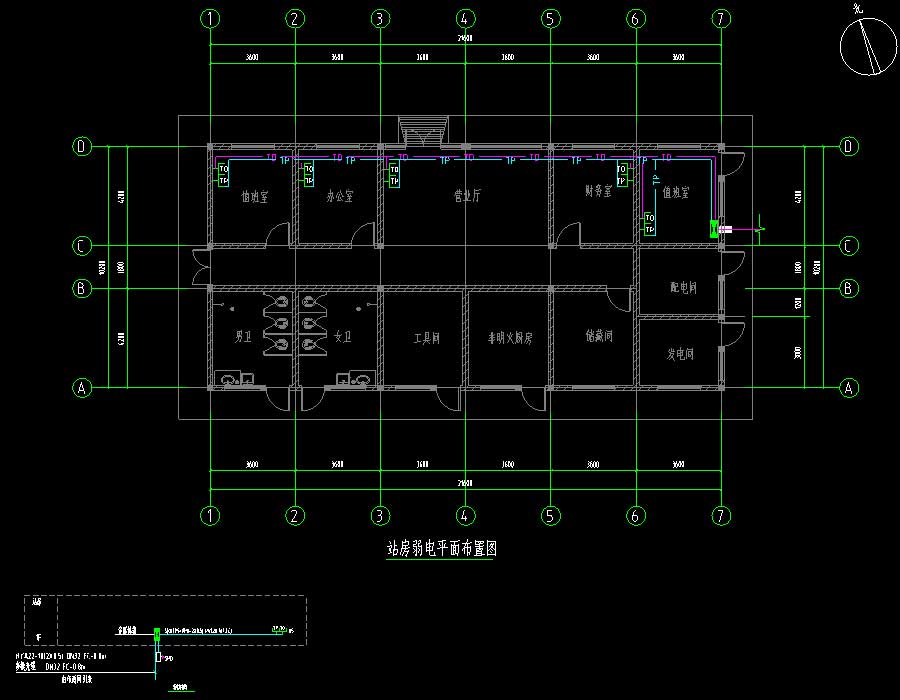
说明:该项目为某加油站电气施工图,抗震设防烈度为8度,本设计范围包括站内设备的供配电系统、站区线路敷设、设备的防雷接地的设计及电气、自控设备的选择。图纸内容含:电气设计说明,设备、材料表,电缆表,AP1动力柜配电系统图,站控系统配置图,AC1控制箱/ALE应急照明箱系统图,AL1配电箱/AL2配电箱系统图,液位仪、收费系统、UPS电源,和双层储罐/管道探测仪系统图,配电室平面布置图,站房照明平面图,站房温控器平面布置图,插座平面布置图,站房弱电平面布置图,站区危险爆炸区域划分平面图,站区电缆走向平面图,室外照明平面图,站区防雷防静电/接地平面图,视频监控平面布置图,视频监控系统图,罩棚防雷平面图,站房屋面防雷平面图,防雷接地、等电位、管件、法兰、平行管件接地线连接大样图,电缆敷设及配管连线做法图。
            
                
                
                        
                        







打开系统设
执行注册

            
            