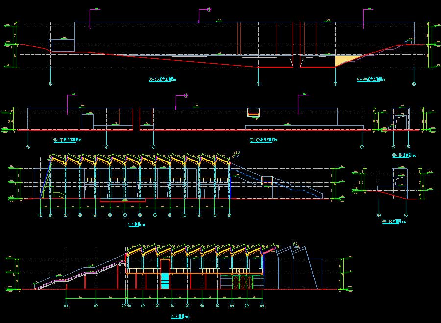
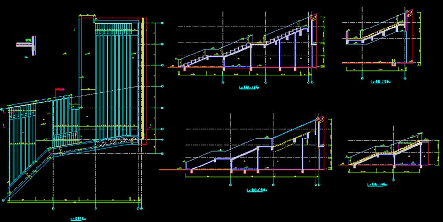
说明:该项目为某综合服务配套项目楼全专业施工图,抗震设防烈度为7度,主要结构形式为钢框架结构,建筑高度为11.11米,地上层数1层,局部2层,地下层数为1层,总建筑面积为3067.94平方米(主体建筑2383.1平方米)。无单独地库部分图纸。图纸内容含:建筑说明,绿色设计专篇,平面图,立面图,剖面图,楼梯大样,卫生间大样,门窗表、门窗大样,墙身大样;给排水说明,绿色设计专篇,主要设备材料表,海绵城市给排水设计专篇,消火栓系统原理图,雨水系统原理图,泵房给水系统图,消火栓泵组系统图,泵房潜污泵排水系统图,消防水池泵房平面图,消防水池泵房顶面图、剖面图,卫生间详图,卫生间给排水支管系统原理图,平面图;结构说明,绿色设计专篇, 危险性较大的分部分项工程提示,钢结构施工图设计说明,旋挖钻孔灌注桩(墩)设计说明,基础总平面布置图,基础平面布置图,长廊结构排水设施平面图,长廊墙柱平面布置图,长廊墙身大样,长廊平面布置图,长廊梁配筋图,楼梯基础平面布置图,楼梯基础拉梁配筋图,楼梯墙柱平面布置图,楼梯屋面平面布置图,楼梯屋面梁配筋图,楼梯剖面图,桩(墩)平面布置图,柱布置图,钢柱及柱脚平面布置图,梁配筋图,梁模板图,地下柱配筋及柱脚节点详图,柱平面布置图,结构平面图,钢梁布置图,檩条布置图,钢梁立面示意图,钢结构节点详图;电气说明,消防专篇,消防应急照明和疏散指示系统说明,绿色设计专篇,配电系统图,火灾自动报警系统图,集中控制型疏散应急照明系统图,消防电源、防火门、能耗监控、火灾漏电报警系统图,太阳能光伏发电系统图,电气平面图,照明平面图,消防平面图,接地平面图,屋顶防雷平面图;暖通说明,绿色设计专篇,通风平面图、多联机系统流程图,空调风管平面图,空调冷媒管平面图,空调平面图等等。专业包括建筑、结构、给排水、电气、采暖通风。








打开系统设
执行注册

