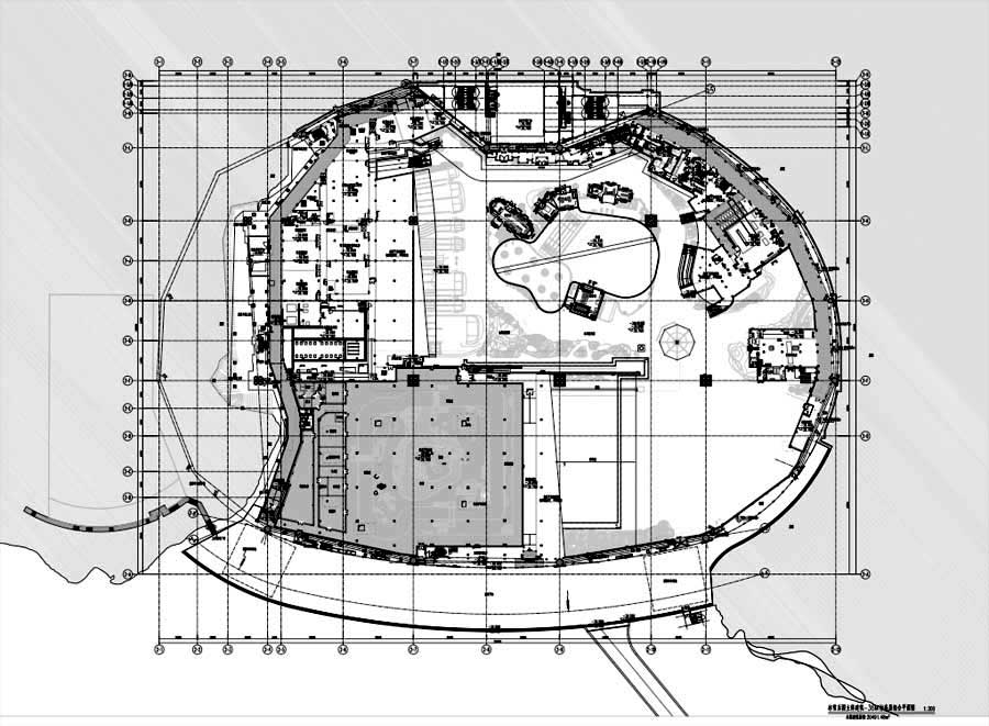
说明:某矿坑生态修复利用工程游乐园项目全专业施工图(含修改清单),该套图纸为PDF版。项目设计用地为一废弃的矿坑,设计功能含室内雪乐园及室外水乐园两部分。包括冰雪乐园主体建筑,冰雪乐园入口综合楼,冰雪乐园氨制冷机房,水乐园及地下停车库,抗震设防烈度为6度。其中,冰雪乐园主体建筑高度为37米,地上层数1层,总建筑面积为46117.13平方米;冰雪乐园入口综合楼建筑高度为13.8米,地上层数1层,总建筑面积为3698.81平方米;冰雪乐园氨制冷机房建筑高度为6.5米,地上层数2层,总建筑面积为866.7平方米;水乐园项目总建筑面积为11297.22平方米,主入口建筑高度为11米,最高日用水量为2781.1m3/d;地库为2层,建筑面积为42209.21平方米。图纸内容含:建筑说明,节能说明,区域位置图,总平面图,总平面消防分析图,总平面交通分析图,总平面绿化分析图,总平面竖向分析图,平立剖面图,建筑节能节点大样图,楼梯详图,轴网定位图,防火分区图,卫生间详图,墙身详图,节点详图,幕墙定位图;给排水说明,室外给水及消防管线布置图,给排水、消防平面图,卫生间、屋顶水箱间详图,给水及热水、排水、雨水、消火栓系统原理图,消防水泵房详图,软化水处理机房详图,;结构说明,荷载平面图,桩位图,基础设计图,结构平面布置图,配筋图,柱定位及编号图,留洞图,典型桁架布置图,柱、支撑布置图,后浇带平面布置及详图,楼梯详图;电气说明,室外总体电力管线示意图,供电单线示意图,低压配电、低压干线、电能管理、接地干线、火灾自动报警、电气火灾监控、消防电源监控、防火门监控、配电箱系统图,电力、防雷接地、照明、火灾自动报警平面图;暖通说明,主要设备接管示意图,管道及附件安装示意图,空调水系统原理图,防、排烟系统原理图,空调通风风管、空调水管、消防风管、水管平面图;动力说明,冰雪世界蒸汽供应系统原理图,压力管道特性表,冰雪世界热水供应系统原理图,标高动力管道平面图,洗衣房动力机房设备平面布置图,洗衣房动力管道平面图等等。专业包括建筑、结构、给排水、电气、采暖通风、动力。








打开系统设
执行注册

