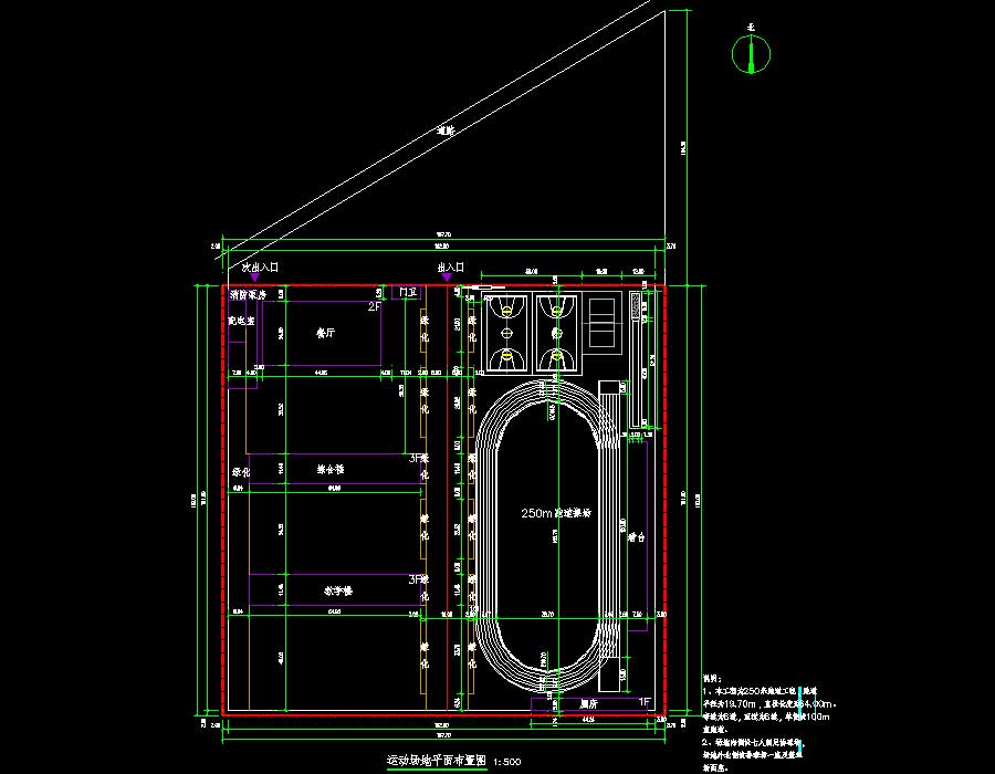
说明:该项目为某民族小学看台建筑、结构、电气专业专业施工图及操场建筑施工图,其中,看台总建筑面积291.45平方米,地上1层,高4.05米,框架结构;田径场采用半径R=19.70的250米跑道,直道6条,弯道6条,道宽1.22米。图纸内容含:(看台)建筑专业,建筑设计说明、建筑工程做法、门窗表、看台底层平面图、看台一层平面图、看台屋顶层平面图、立面图、剖面图、详图;电气专业,电气设计说明、设备材料表、配电系统图、看台底层照明平面图、看台一层照明平面图;结构专业,结构设计总说明、基础平面布置图、看台框架柱、梁配筋图、主席台框架梁、板配筋图、主席台框架柱配筋图、主席台雨棚;运动场地施工图设计说明、平面布置图、材质分布图、高程控制图、详图、蓄水池详图。








打开系统设
执行注册

