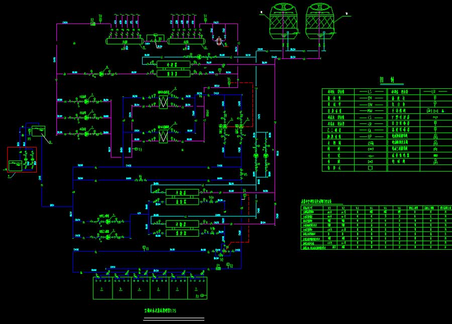
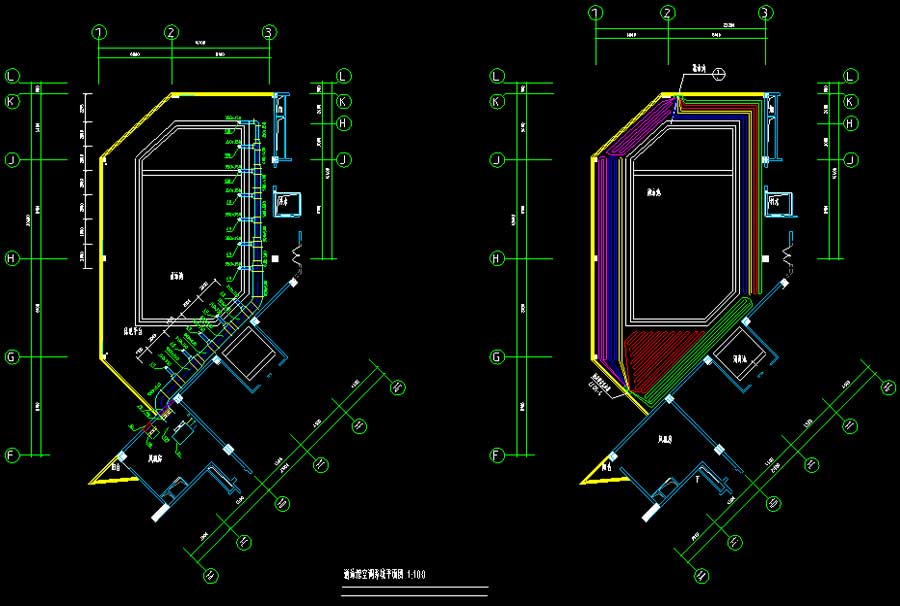
说明:本工程为某五星级酒店中央空调工程(含计算文件),该套图纸为某竞赛多套优胜作品。该建筑共15层,建筑总面积为23831平方米,总高度为77.5米。该酒店地上楼层由客房、餐饮、会议、商务等类型房间组成,其中地下一层为员工餐厅、停车库、冷冻机房等。其中除地下室,库房,卫生间,空调机房,楼梯间未设空调外,其余空间均为设置有空调系统客房采用风机盘管加独立新风系统,餐厅、宴会厅等大空间场所则采用全空气系统。无单独地库部分图纸。图纸内容含:空调系统设计及施工说明,主要设备材料表,机房图,水系统原理图,控制原理图,七-十四层空调风、水平面图,会议室、宴会厅空调风、水平面图,游泳馆空调系统平面图,空调机房、风机盘管安装大样图,空调水系统轴测图,空调风、水系统平面图等等。








打开系统设
执行注册

