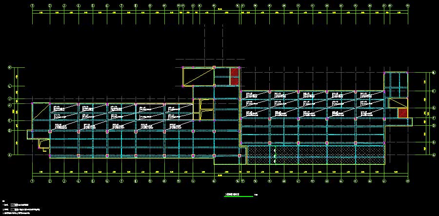
说明:某多层医院门诊楼框架结构加固改造施工图(含招标文件、招标控制价),该门诊楼建造于1976年,主要结构形式为框架结构,主体结构高度为17.4米,地上层数6层。本工程为抗震设防工程,建筑抗震设防类别为乙类,工程所在地区的抗震设防烈度为7度,设计基本地震加速度为0.10g,场地类别为Ⅱ类,设计地震分组为第一组,框架抗震等级为第二级。图纸内容含:加固设计总说明,柱加大截面加固表示方法说明,梁加大截面加固表示方法说明,新增柱、梁、板表示方法说明,楼板粘碳纤维加固表示方法说明,梁粘贴钢板加固表示方法说明,新增基础结构图,柱加固平面布置图,梁加固平面布置图,板加固平面布置图,风雨连廊钢结构图,钢结构设计总说明,钢结构基础平面布置图,钢结构平面布置图,钢结构节点大样。








打开系统设
执行注册

