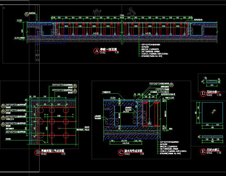
说明:某景观施工图设计(一期),室外景观和30M绿化带,景观面积约117100㎡,主要包含:总图,文艺广场,水广场,北街花园,北街水道,下沉广场,通用图,园建、绿化、水电等。详细包含:园建设计总说明,园建结构设计总说明,索引总平面图,北区竖向总平面图,周边铺装波打线平面图,北区家具布置总平面图,尺寸定位平面图,消防通道尺寸、坐标定位平面图,无障碍通道定位平面图;艺文广场布置、索引平面图,立剖面图,竖向平面图,尺寸、坐标定位平面图,铺装平面图,水景详图,水景架空结构详图,廊架详图,廊架结构详图;水广场布置、索引平面图,竖向平面图,剖面图,尺寸平面图,铺装平面图,旱喷类型详图,水凳详图,L型树池坐凳详图,水广场台阶详图;北街花园布置、索引、竖向平面图,尺寸、坐标定位平面图,台阶和花池详图;北区水道布置、索引平面图 北区水道竖向平面图,尺寸平面图,铺装物料平面图,剖面图,详图,L型树池坐凳详图;下沉广场索引、标高平面图,立剖面图,尺寸定位平面图,铺装物料平面图,台阶平面图;通用图,无障碍通道详图,草地井盖通用图,硬质井盖大样图,泵井和设备井详图,蓄水井详图,铺装大样图,景观灯详图,结构图等。种植说明,树池覆盖物料图,树木支撑图,植物配置总平面图,乔木平面图,地被平面图,苗木表。电气设计总说明,北区景观电气平面图,文艺广场电气平面图,水幕广场电气平面图,休闲广场电气平面图,北区景观电气系统图,北区景观背景音乐图,灯具意向图,景观电气大样图。给排水设计说明,北区景观排水平面图,给水平面图、系统图,给水设备大样图,景观排水沟意向图等。








打开系统设
执行注册

