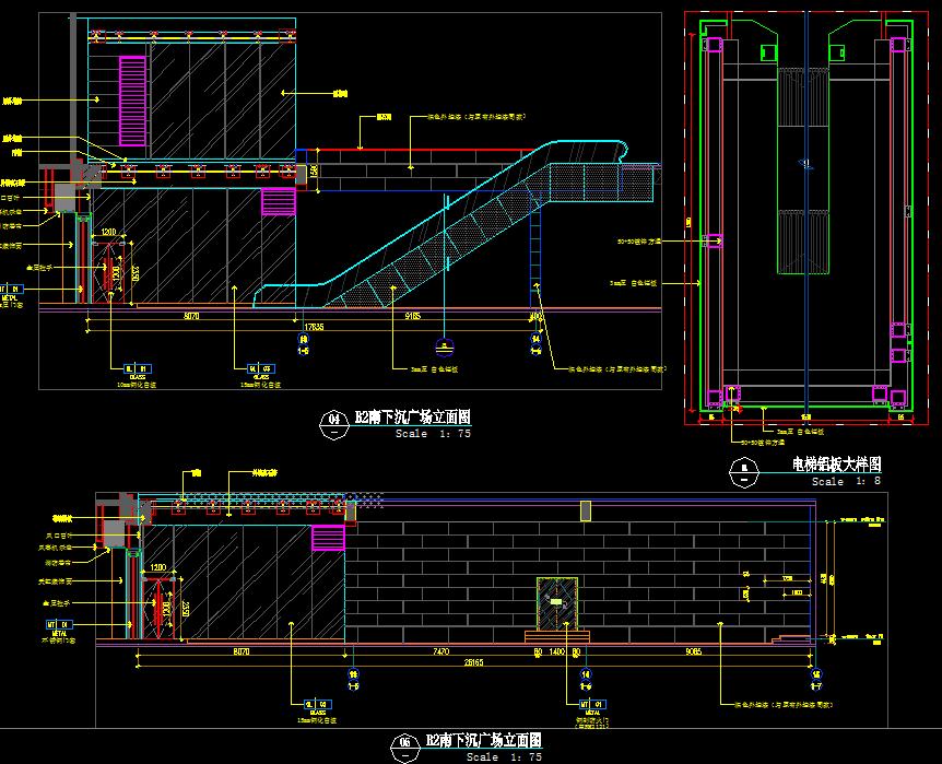
说明:某时代大厦1号楼,本次装修设计范围:B2层至L3层商场公区域及中庭公共区部分,地下B2-B1层面积约4280平方米,地上L1-L3层面积约4895平方米。总计面积约:9175平方米,图纸包含:目录,设计说明,装饰材料表,B2层南北下沉广场平面图、立面图,L2、L3层平面布置图,墙体定位图,地面材质图,天花布置图,天花尺寸图,灯具定位图,综合天花图,立面索引图,公共区立面图,观光电梯立面图,L4隔层机房墙体定位图,立面索引图,天花布置图,灯具连线图,地面布置图、立面图;卫生间、货梯、电梯厅放大图,天花通用节点图,地面通用节点图,墙身通用节点详图,独立柱节点详图,店铺门楣节点详图,卫生间节点详图,消火栓通用节点详图等。给排水设计说明,B2层超市给水排水平面图,超市垫高区域平面图,超市安装方式平面图,给水排水系统图,L1层收货区排水平面图,L2、L3层给水排水平面图,L4层给水平面图,卫生间给排水平面图、系统图等。排油烟管道平面图。设计说明,B2层南北下沉广场照明配电平面图,B2层超市强电平面图,配电系统图,强电竖向干线系统图,电力配电箱接线系统图,照明配电箱接线系统图,应急配电箱接线系统图,电力、照明、应急照明、插座平面图,各层天花、地面疏散指示配电平面图,户外灯箱配电平面图,L5层光伏机房照明、插座配电平面图等
            
                
                
                        
                        







打开系统设
执行注册

            
            