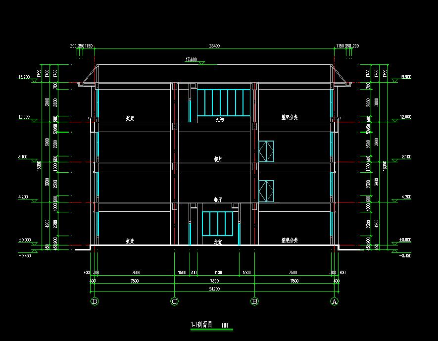
说明:某人民医院建设项目——后勤保障楼,地上4层,建筑面积为3698.3㎡,建筑高度15.9m,一层为洗衣房,二三层为厨房餐厅,四层为后勤管理用房,建筑结构形式为框架结构,抗震设防烈度为8.5度;图纸包含:建筑设计说明,门窗表,屋面构造做法,选用标准图集,室内装修表,门窗大样,平面图,立剖面图,楼梯间平面放大图,楼梯剖面图,墙身大样;给排水设计说明,材料表,给排水平面图,卫生间给排水大样图,太阳能热水系统设计说明,给水、热水、排水、消火栓展开图,热水原理图;暖通设计说明,设备一览表,平面图;电气设计说明,主要设备表,竖向配电干线图,配电箱系统图,电气平面图,屋顶防雷平面图,弱电设计说明,弱电主要设备材料表,弱电平面图,弱电系统图








打开系统设
执行注册

