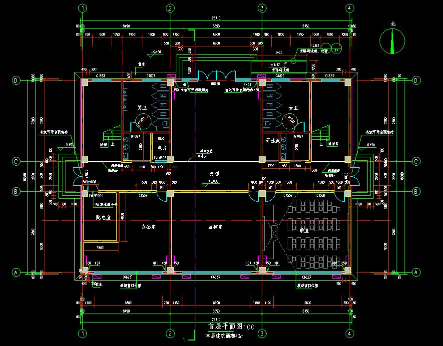
说明:第三职业中学改扩建项目综合教学楼、报告厅、体育馆全专业施工图,其中,综合教学楼一:占地面积:492.43平方米,总建筑面积为2024.56平方米,地上4层,建筑高度16.93米,结构形式为框架结构。综合教学楼二:占地面积:492.43平方米,总建筑面积为2024.56平方米,地上4层,建筑高度16.93米,结构形式为框架结构。报告厅:占地面积:842.36平方米,总建筑面积为842.36平方米,地上1层,建筑高度7.45米,结构形式为球形网架结构。体育馆:占地面积:1054.94平方米,总建筑面积为1270.15平方米,地上1层,局部2层,建筑高度11.05米,结构形式为门式钢架结构。设计内容含建筑、结构、给排水、电气、暖通施工图。








打开系统设
执行注册

