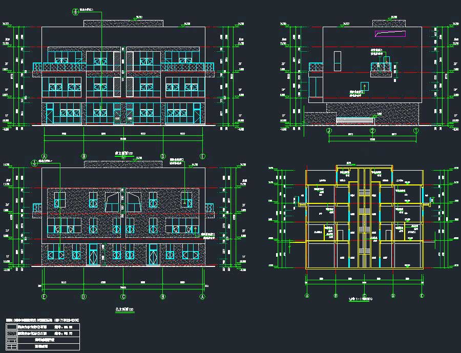
说明:某地块1#商务办公楼建筑、结构、给排水、电气、暖通施工图,本单体地上建筑面积:1167.85平方米,地下建筑522.29平方米,地上共3层,为商务办公,地上一层至三层层高为3.9m,地下1层。结构形式为钢筋混凝土框架结构。图纸内容含总平面图、总平面定位图/竖向图、建筑设计说明、防火/节能设计专篇、做法表、绿色建筑专篇、装配式设计专篇、各层平面图、立/剖面图、楼梯大样图、门窗表及大样图、墙身大样图和结构总说明、危险性较大的分部分项工程设计说明、超长结构混凝土抗裂技术专篇、绿色建筑设计专篇(居住建筑)、基础布置平面图及基础大样、墙/柱施工图、梁平法施工图、板施工图、楼梯大样图、墙身大样、装配整体式结构设计说明、叠合板平面布置图及大样图、室外楼梯平面大样图和给排水消防系统设计说明、绿色建筑(公共建筑)设计专篇、给排水系统图、太阳能热水运行原理图、给排水平面图、气体灭火系统专项设计说明、消防水池及泵房大样图、消火栓系统图、自喷系统图、给排水平面图、自喷平面图和电气设计说明、建筑机电抗震设计专篇、装配式建筑电气设计专篇、绿色建筑设计专篇、应急照明设计专篇、主要电气设备材料表、配电箱系统图 、弱电系统图、大样图、动力/照明平面图、屋顶层防雷平面图、接地平面图、应急照明设计专篇、消防设计专篇、配电系统图、低压配电系统图、消防泵房配电系统图、火灾自动报警系统图、变配电室(布置平面图、照明及插座平面图、缆沟布置平面图、接地平面图)、电缆沟剖面图、动力及干线平面图、火灾自动报警平面图、应急照明平面图、等电位及接地平面图和供暖通风工程设计总说明、空调冷媒管路系统图、空调平面图 、新风平面图、机房层通风平面图等。








打开系统设
执行注册

