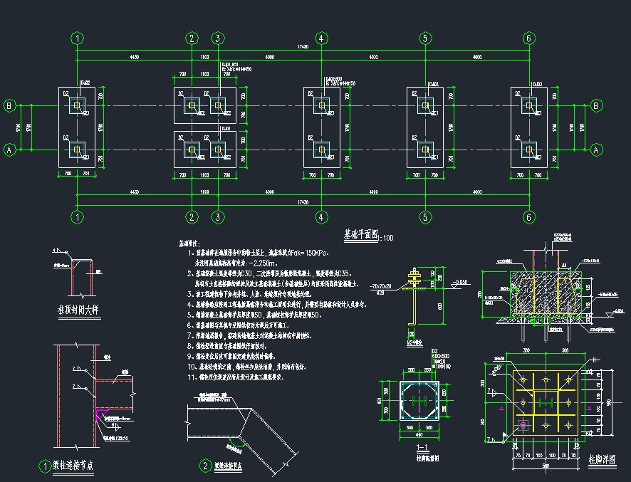
说明:某景区低层游客接待中心建筑、结构、给排水、暖通、装饰施工图,其总建筑面积261.44平方米,建筑基底面积:1748.3平方米,建筑高度为6.05米,地上2层,抗震设防列度为7度,结构形式:钢结构。图纸内容包含建筑设计总说明、室内外装修做法表、节能设计专篇、消防专篇、绿色建筑设计专篇、各层平面图、立剖面图、卫生间大样、门窗大样、檐口大样、墙身大样和结构总说明、基础平面图、结构布置图、楼板布置及配筋图和给排水消防总说明、绿色建筑专篇、给排水平面图、给排水系统图、卫生间给排水大样图和暖通总说明、绿色专篇(暖通)、消防设计专篇、采暖通风平面图、卫生间通风大样图和电气设计说明、材料表、配电箱系统图、基础接地平面图、屋顶防雷平面图、插座/照明平面图、应急照明/弱电平面图、温控器平面图等以及平面图、地面铺贴图、顶面天花图、顶面尺寸图、插座平面图、立面索引平面图、接待中心立面图、医务室立面图、办公室立面图、男卫立面图、剖面图、效果图。








打开系统设
执行注册

