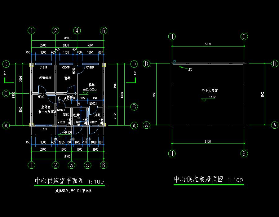
说明:该项目为某中心卫生院工程设计服务综合楼和中心供应室全专业施工图,总建筑面积4400.74平方米,其中:综合楼,建筑面积4341.1平方米,地上5层,地下1层,高19.2米,框架结构,门诊人数/床位数:100人/60床,停车泊位:55/室外;中心供应室,建筑面积59.64平方米,地上1层,高3.6米,框架结构。图纸内容含:总平面及竖向布置图、消防总平面图、绿化总平面图、建筑施工图设计总说明、室内装修工程及室外环境工程做法构造表、构造大样、建筑平面图、立面图、剖面图、大样图、建筑节能设计说明专篇、保温范围平面图、结构设计总说明、基础平面布置图、基础层配筋图、基顶~屋面墙柱定位图、墙柱配筋图、地上层板配筋图、屋面层板配筋图、小屋面板及机房顶板配筋图、梁配筋图、屋面层梁配筋图、小屋面及机房顶板板配筋图、楼梯结构施工图、中心供应室结构施工图、电气施工图设计说明、10KV配电系统图、低压配电系统图、火灾报警干线系统图、配电箱系统图、照明平面图、屋顶防雷平面图、基础接地平面图、报警平面图、中心供应室电气平面图、一般照明平面图、一般插座平面图、弱电系统图、监控平面图、网络平面图、电视系统平面图、主要设备材料表、给排水总平面图、给排水设计与施工总说明 、给排水系统图、给排水平面图、屋顶层给排水平面图、喷淋平面图、中心供应室给排水图、消防水泵房大样、消防水箱大样图、卫生间大样、暖通设计与施工总说明、通风及防排烟系统原理图、大样图及检验科室排风原理详图、通风及防排烟平面图、屋顶层通风平面图、中心供应室平面图、景观设计说明、景观竖向标高总平面图、尺寸定位总平面图、索引总平面图、家具布置总平面图、网格放线总平面图、铺装总平面图、停车位详图、铺装和绿化井盖详图、通用详图、植物种植设计说明、植物种植示意图、植物配置表、植物总平面图、乔木总平面图、灌木总平面图、乔木放线总平面图、灌木放线总平面图等及楼梯计算书、挡墙计算书、桩基计算等。








打开系统设
执行注册

