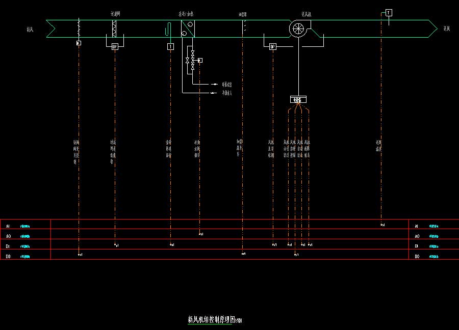
说明:该项目为某会展中心智能化专业施工图,项目总占地面积约487 亩,总建设规模约30.87 万平方米,其中地上建筑约14.2349万平方米,地下建设停车场及配套设施约1.5056万平方米。图纸内容含:电气说明,综合布线智能化专网及外网系统图,无线对讲系统、综合布线无线AP系统图,视频监控系统图,电子巡更、入侵报警、门禁管理系统图,IBMS物联网集成管理、电梯五方通话系统图,多媒体信息发布系统图,停车场管理系统图,车位引导系统图,标准时钟系统图,能耗计量系统图,智能照明系统图,会展变配电室平面布置图,楼宇自控系统图,新风机组控制原理图,排风机兼送风机监控原理图、排风兼排烟机监控原理图,公共广播系统,会议预约系统,集水坑监控原理图,会议室系统图,智能建筑应急响应系统,安防控制室工程,监控室机柜布置,安防控制室配电系统图等等。








打开系统设
执行注册

