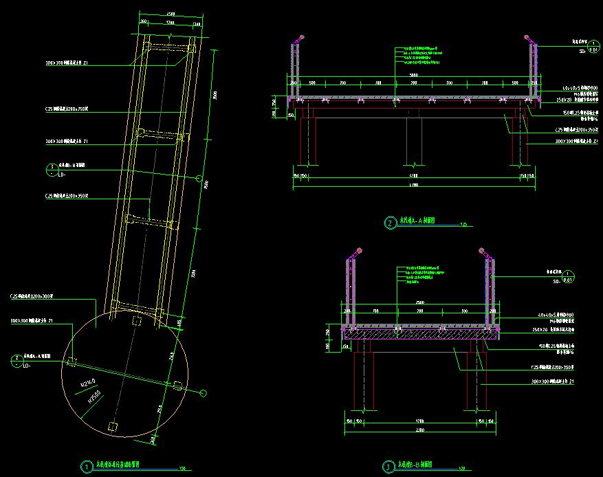
说明:公园提升改造项目景观施工图设计,室外环境景观工程,抗震设防烈度为7度,本次设计面积为19532.86平方米,公园游人容量≤1300人,设计内容包括设计范围内的硬质铺装、景观构筑物、水池(水景)、园林小品、景观照明、景观给排水、 绿化种植等。图纸内容包含:目录,设计说明,总平面分区图,应急避难场所指示牌布置平面图,索引总平面图,竖向总平面图,尺寸总平面图,网格放线总平面图,铺装索引总平面图,标识、家私布置总平面图,标准道路铺装详图,标准道路做法详图,标准汀步、台阶做法详图,标准生态停车场做法详图,标准旱溪驳岸详图,标准叠水坝详图,标准毛石挡土墙详图,标准平桥详图,标准栏杆详图,植草沟及海霞石做法详图,标准绿地溢流口做法详图,标准渗井、雨篦子详图,标准家私详图,凤翔湾尺寸平面图,凤翔湾平面图,凤翔湾详图,儿童游乐场地平面图,儿童游乐场地详图,轮胎攀爬墙、木桩平衡木详图,木桩游戏组合详图,亲水木平台及湿地平面图,亲水木平台平面图,木栈道详图,亲水木平台详图,凤溪里广场平面图,阶级景墙详图,木平台平面图,灵凤廊平面图、梁平面图、详图,六角亭屋顶檩、椽组合平面图,六角亭平面图、立、剖面图,六角亭详图、防雷立面图、防雷顶视图、基础详图,曲径运动广场平面图、广场网格放线图、广场详图,凤舞人间定位、索引平面图、详图,梧桐林休闲广场详图,凤凰涅槃详图,抽象钢构雕塑详图;绿化施工设计说明,苗木表,总平面分区索引图,种植设计总平面图,乔木平面图,灌木平面图,地被平面图,地形平面图;给排水设计说明,给排水安装示意,给水总平面图,电气设计说明,电气配电系统图及安装示意,电气总平面图。








打开系统设
执行注册

