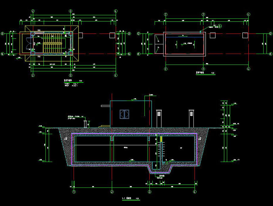
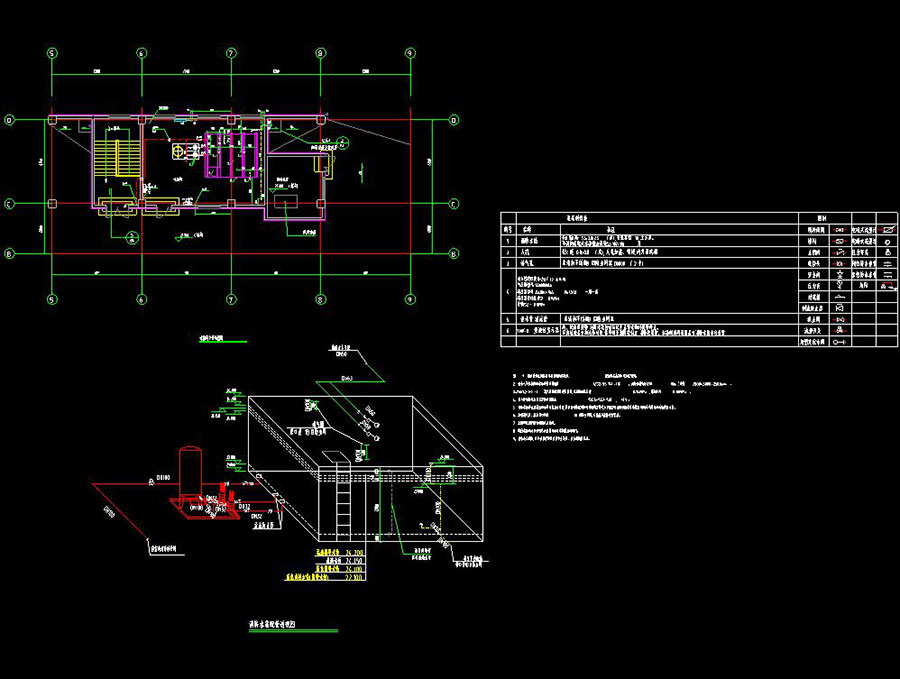
说明:中学宿舍楼工程地上6层,建筑高度21.4m,总建筑面积9009.63㎡,消防水泵房地上1层,地下1层,建筑高度3m,总建筑面积275.32㎡,框架结构,抗震设防烈度8度,图纸包含:总平面图,建筑总说明、防火设计说明专篇,门窗表、门窗详图,室内装修表、建筑节能设计专篇,绿色建筑设计专篇,各层平面图,顶层平面图,屋面排水示意图,立剖面图,楼梯详图,卫生间大样图、墙身详图,消防水池建筑施工图;结构设计总说明,基础详图,柱结构平面布置图,梁平法施工图,板配筋图,楼梯详图,摩擦型抗震阻尼器设计说明,墩台连接剪切式摩擦型阻尼器节点结构设计说明,阻尼器平面布置图,水池结构设计说明,消防水池结构布置图;给排水设计说明,给排水平面图,盥洗室、卫生间大样图,消火栓系统图,热水系统图,给水系统图,排水系统图,高位水箱间平面布置图,消防泵房平面布置图及系统图;暖通设计说明,通风平面图,采暖平面图,采暖系统图;电气设计说明及图例,火灾自动报警设计说明,火灾自动报警系统图,弱电系统图,配电系统图,干线及接地平面图,照明平面图,风扇平面图,弱电平面图,消防报警平面图,屋顶消防报警平面图,屋顶照明及防雷平面图,电气总平面图,消防水泵房电气设计说明及配电系统图,照明及接地平面图,动力平面图,综合管网总平面图,污水、雨水外网平面图,给水外网平面图,热力外网平面图等








打开系统设
执行注册

