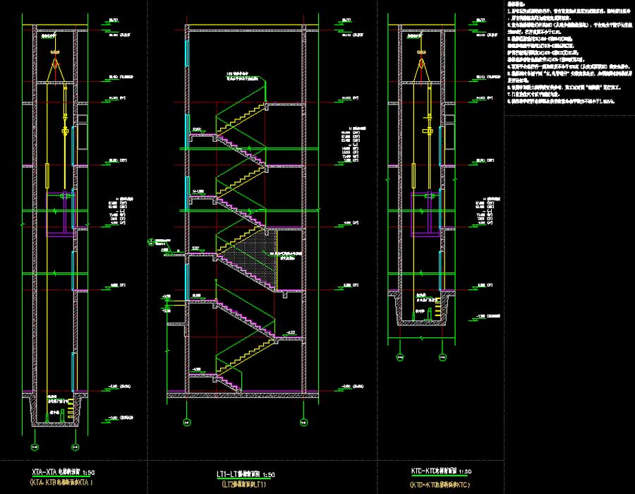
说明:该项目为某高层学生宿舍及大学生活动中心建筑、结构施工图(建筑图纸部分显示不全,结构缺少说明及部分图纸),抗震设防烈度为6度,建筑高度为94.5米,地上层数26层,地下层数为1层,总建筑面积为34698.93平方米。图纸内容含:建筑:建筑说明,建筑节能设计说明,建筑节能设计说明,平面图,立面图,剖面图,卫生间大样,楼梯、电梯大样图,墙身大样,门窗大样、门窗表;结构:机械钻孔灌注桩基础设计说明,模板配筋图,梁平法施工图,剪力墙平面布置图,裙房桩平面布置图,裙房地下室底板大样图,裙房承台平面布置图,裙房地下室底板模板配筋图,裙房柱平法施工图,主楼桩基平面布置图,主楼承台底板结构图,底板大样图。








打开系统设
执行注册

