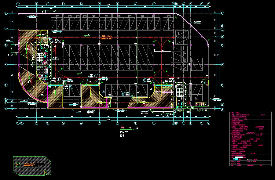
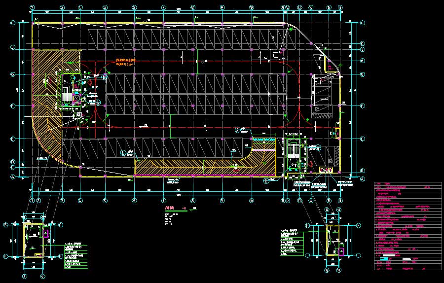
说明:该项目为某低层停车楼建筑、结构、给排水、电气、采暖通风施工图(含计算书、地勘、预算答疑),抗震设防烈度为6度,主要结构形式为框架结构,地上层数2层,地下层数为1层,总建筑面积为9728.91平方米。图纸内容含:建筑:建筑说明,总平面及竖向布置图,绿化总平面布置图,消防总平面布置图,平面图,立面图,剖面图,大样图,坡道大样,楼梯及厕所大样,楼梯及做法大样,门窗表及门窗大样;结构:结构说明,基础结构平面布置图,柱、墙定位图,桩基设计说明及大样图,电梯机井、挡土墙大样,消防水池、集水池大样,梁配筋图,模板及板配筋图,楼梯结构剖面及大样图;给排水:给排水说明,给排水总平面图,给排水系统图,给排水平面图,喷淋平面图,水泵房大样图,集水坑大样图 ,消防水箱大样图,卫生间给排水大样图及系统图;电气:电气说明,电气总平面图,电气工程抗震设计说明,高压配电系统图,低压配电系统图,柴油发电机低压配电系统图,变配电室大样图,竖向干线系统图,火灾报警及联动系统图,消防电源监控及防火漏电监控系统图,配电系统图,动力平面图,照明平面图,消防平面图,屋面层防雷平面图,接地平面图;暖通:暖通说明,主要设备材料表,加压送风系统原理图,通风及防排烟平面图等等。








打开系统设
执行注册

