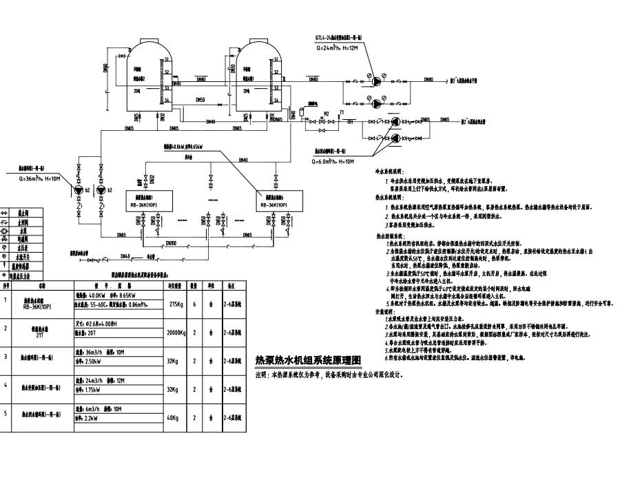
说明:该项目为某职业技术学院校区附属楼宇修缮翻新及配套工程给排水分册室外部分、主楼、副楼、会议中心楼、迎宾楼、3号别墅楼、4号别墅楼、潮连培训中心花楼给排水施工图,图纸内容含:给排水消防设计总说明、抗震设计与施工说明、给排水抗震支吊架大样图、主楼首层给排水平面图、主楼二层给排水平面图、主楼三层给排水平面图、主楼四层给排水平面图、主楼五层给排水平面图、主楼六层给排水平面图、主楼七层给排水平面图、主楼屋面层给排水平面图、标准宿舍1给排水大样图、标准宿舍2给排水大样图、二层宿舍给排水大样图、主楼首层卫生间给排水大样图、主楼首层厨房给排水大样图、热泵热水机组系统原理图、主楼给水系统图、主楼污水系统图、主楼雨水系统图、主楼冷凝水排水系统图、水消防灭火系统设计说明、主楼首层消火栓平面图、主楼二层消火栓平面图、主楼三层消火栓平面图、主楼四层消火栓平面图、主楼五层消火栓平面图、主楼六层消火栓平面图、主楼七层消火栓平面图、主楼电梯机房层消火栓平面图、主楼自动喷水灭火系统原理图、主楼首层自动喷水灭火系统平面图、主楼二层自动喷水灭火系统平面图、主楼三层自动喷水灭火系统平面图、主楼四层自动喷水灭火系统平面图、主楼五层自动喷水灭火系统平面图、主楼六层自动喷水灭火系统平面图、主楼七层自动喷水灭火系统平面图、主楼电梯机房层自动喷水灭火系统平面图、厨房设备灭火装置设计说明、厨房灭火系统平面图、厨房设备灭火系统原理图等。








打开系统设
执行注册

