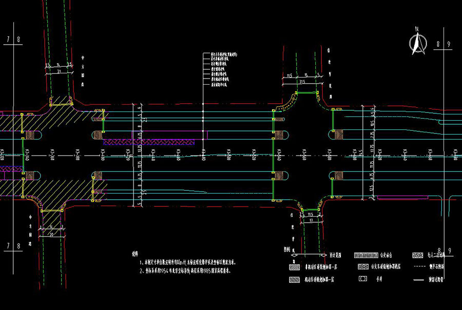
说明:本项目为道路提质工程,道路等级为城市快速路,长度为6.53km,地面段为双向12车道,红线宽度70米,地面 高架段为高架双向6车道 地面双向12车道,设计速度80km/h,本工程主要道路建设内容为:道路路面病害处理及复浇、雨水口改造、排水检查井改造、人行道侧平石翻新、树池边框翻新、人行道进口坡、无障碍设计、预留过路管等。图纸内容包含:图纸目录,施工图设计总说明,道路平面设计图,直线、曲线及转角表,路线逐桩坐标表,标准横断面设计图,路面结构设计图,路面病害处治设计图,新老路面搭接设计图,新老路基搭接设计图,沟槽修复路面结构与现状路面结构搭接处理,侧平石大样设计图,人行道铺装设计图,盲人触感块材布置图,树池大样图,街坊路口缘石坡道布置示意图,二次过街安全岛设计图,道路主要工程数量表,交通工程设计总说明,交通平面设计图,交通标线大样图,交通标志版面大样图,BRT彩色涂装大样图,非机动车道彩色涂装大样图,警示柱大样图,花箱护栏大样图,交通主要工程数量表








打开系统设
执行注册

