 
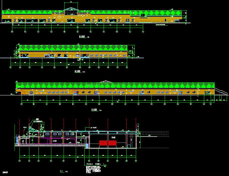
                        说明:36班九年一贯制学校项目,其中小学20班,每班40个学生,小学总学生人数800人,初中16个班,每班45个学生,初中总学生人数720人,学校学生总人数为1520人,总建筑面积62444.69平方米,其中地下建筑面积24575.66平方米,地上建筑37869.03平方米,规模为多层民用建筑。其中:地下车库(人防)及体育、辅助用房室外地面以下部分高度7.4米,架空自行车库、运动场及附属建筑(注:地下车库(人防)及体育、辅助用房室外地面以上部分)建筑高度3.6米,初中教学楼地上6层,建筑高度23.1米,小学教学艺体楼地上5层,建筑高度23.55米,行政实验楼地上5层,建筑高度20.55米,中小学课程创新中心地上6层,建筑高度23.55米,门卫1A、门卫1B、门卫2、门卫3地上1层,建筑高度3.9、3.45米,用户站地上1层,建筑高度5米。图纸包含:建筑设计说明,装修做法表,节能设计专篇,外墙保温部位平面示意图、通用节点,绿色建筑设计专篇,总平面图,绿地面积计算,道路交通布置图,地下车库(人防)及体育、辅助用房地下室平面图,地下室防火分区示意图,地上一二层组合平面,剖面图,地下车库坡道地上平面图,坡道中心线剖面、末段剖面,坡道中心线高程控制点标高,楼梯详图,门窗表,变电房平面详图,初中教学楼平面图,立剖面图,墙身大样,局部大样、普通教室平面详图等;结构设计总说明,结构平面图,坡屋面结构平面图,柱平面配筋图,梁平面配筋图,构造详图,楼梯结构图,桩位平面图,灌注桩详图,基础平面图,基础梁配筋图,地下室防水底板配筋图,基础详图,坡道详图,楼梯详图,门卫、围墙、连廊结构图等;基坑围护设计总说明,周边环境图,围护结构平面定位图,剖面图,钻孔灌注桩配筋图,立柱及立柱桩平面定位图、大样图,第一道支撑平面定位图,局部第二道支撑平面定位图,支撑配筋图及节点详图,型钢换撑平面点位图,降水平面示意图,土方开挖示意图,土方开挖工况图;照明总平面图,电力总平面图,弱电总平面图,应急避难电力总平面图,绿色建筑设计说明,电气设计说明,图例,SPD分布示意图,弱电干管图、配电箱系统,配电系统图,照明、插座、应急照明、空调配电、弱电平面图,防雷接地平面图等等(部分专业缺部分建筑施工图)
 
             
                 
                 
                         
                        







 打开系统设
打开系统设 执行注册
执行注册

 
             
            