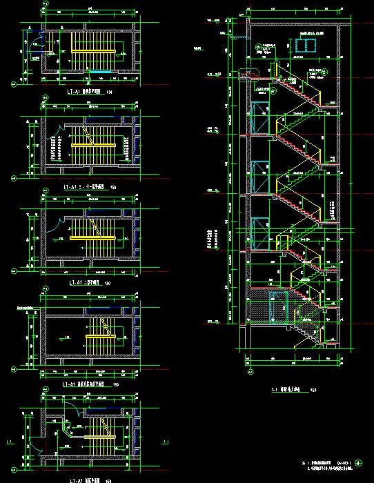
说明:该项目为某办公塔楼全专业施工图(含变更单),总建筑面积约8.4万平方米,地上三栋十一层塔楼,功能是工业(研发),地下室是二层车库及配套服务设施,建筑高度为49.8米。抗震设防烈度为7度,主要结构形式为钢筋混凝土框架-剪力墙结构。图纸内容含:建筑说明,平面图,立面图,剖面图,墙身详图,楼梯详图,门窗详图,核心筒详图,坡道详图;结构说明,梁平法施工图,板平法施工图,楼梯详图,墙柱平法施工图,竖向构件平面定位图及剪力墙详图,竖向构件详图,楼板配筋及平面定位图,梁配筋图;给排水说明,给排水平面图,消防平面图,喷淋系统原理展开图,排水系统原理展开图,消火栓系统原理展开图,卫生间详图,给水系统原理展开图;电气说明,电气总平面示意图,火灾自动报警平面图,弱电平面图,供电主接线示意图,高压、低压配电一次系统图,配电干线图,智能化电力监控及能耗监测系统图,电气火灾监控系统,接地系统示意图;暖通说明,空调水系统原理图,平面图,风系统图,风机房详图,地下室平面图,控制原理图等等。专业包括建筑、结构、给排水、电气、采暖通风。








打开系统设
执行注册

