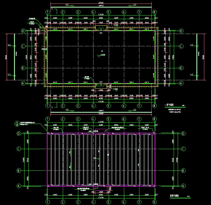
说明:该项目为某厂房多专业施工图,抗震设防烈度为7度,主体部分为门式钢架结构,厂房女儿墙标高为11.1米,地上层数1层,总建筑面积为892.08平方米。图纸内容含:建筑说明,平面图,立面图,剖面图,门窗大样图;结构说明,基础平面图,柱脚和锚栓平面布置图,屋面钢桁架及柱、支撑布置图,屋面檩条布置图,轴柱间支撑布置图,轴墙梁及拉条布置图,刚架简图;给排水说明,室内消火栓系统图,雨水排水系统图,给排水平面图,屋顶排水平面图;电气说明,基础接地平面图,屋顶防雷平面图,防雷接地设计说明,探测器报警系统平面图,照明平面图,AL配电系统图,动力配电箱系统图等等。








打开系统设
执行注册

