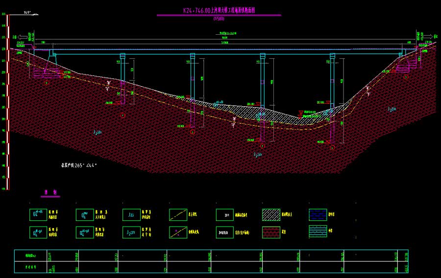
说明:该项目为某高速公路工程施工图,公路等级为四车道高速公路,设计速度为 80km/h,整体式路基为24.5m,分离式路基为12.25m,整体式桥梁为24m,分离式桥梁为12m,荷载等级为公路I级,地震动峰值加速度为0.05g,路线长度47.78772公里。图纸内容含:设计说明,分离式立交桥型布置图,天桥桥型布置图,梁体一般构造图,主梁一般构造图,梁体预应力钢束布置图,预应力布置图,桥墩一般构造图,凉水井大桥墩钢筋图,台帽及垫石钢筋构造图,防撞护栏构造图,伸缩缝及铺装图,全桥工程数量表,连续梁中横梁、连续梁端横梁预应力图,钢筋构造图,大桥桥型布置图,连续梁槽口图,抛石挤淤处理软基图,人行衬砌断面设计图,桥头路基处理设计图,匝道挡墙设计图,路基标准横断面图,互通横断面设计图,地理位置图,桩位坐标图,桩柱钢筋构造图,植物群落建植图,横断面图,纵断面设计图,路基防护工程设计图等等。








打开系统设
执行注册

