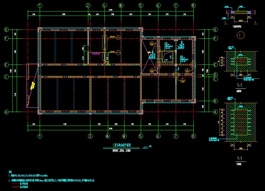
说明:该项目为某学校建筑改物业办公加固改造施工图,原设计结构类型为砌体结构,原使用功能为教学楼。结构类型为三层砌体结构,其中楼面及屋面混凝土构件均为预制构件,楼盖、屋盖形式均为装配式预制板,基础形式为条形基础,基础埋深1.55米,地基承载力为180KPa。图纸内容含:工程说明,原基础结构平面图,基础加固结构平面图,基础加固详图,二层拆除结构平面图,三拆除结构平面图,屋面拆除结构平面图,底层新增构造柱、二层圈梁平面图,二层新增构造柱、三层圈梁平面图,三层新增构造柱、屋面圈梁平面图,底层结构加固平面图,二层结构加固平面图,三层结构加固平面图,新增构造柱详图,新增砌体抗震墙大样,内墙钢拉杆代替圈梁做法,混凝土板墙加固详图,楼板加固详图,钢梯详图。








打开系统设
执行注册

