 
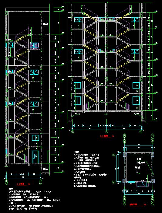
                        说明:该项目为某冷链交易中心保鲜库全专业施工图,抗震设防烈度为6度,主要结构形式为混凝土框架结构,建筑高度为23.95米(室外地坪至冷库建筑檐口与屋脊的平均高度),地上层数4层,总建筑面积为18150.3平方米,建筑基底面积4860.72平方米,冷间占地面积3618.36平方米。冷库库容约7万立方米,属大型冷库。图纸内容含:建筑说明,平面图,立面图,剖面图,楼梯大样图,墙身大样图,节点大样图,地面分仓缝示意图,门窗表、防火分区示意;结构说明,桩定位平面图,承台、承台梁施工图,柱平法施工图,梁平法施工图,板配筋图,屋面设备布置图,钢雨篷图,楼梯详图,吊点布置图;给排水说明,消防及给排水平面图,屋面层给排水平面图,消防系统图,雨水系统图,排水系统图,冷库门及制冷阀组排水示意图,事故水池大样图,机房排水系统图,给水系统图;电气说明,配电系统图,火灾自动报警系统图,配电干线系统图,照明平面图,应急照明平面图,消防平面图,动力平面图,屋面防雷平面图,基础接地平面图;暖通说明,通风排烟系统平面图,屋顶通风系统平面图,冷却物冷藏间通风系统透视图,保鲜库通风送风口安装大样图,风管详图等等。专业包括建筑、结构、给排水、电气、采暖通风。
 
             
                 
                 
                         
                        







 打开系统设
打开系统设 执行注册
执行注册

 
             
            