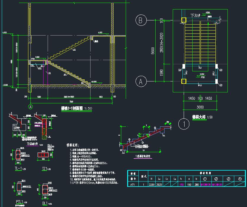
说明:某陵园(殡葬一体化)项目—1~12#悼念厅、13#逝者家属服务综合楼、14#孝文化展示综合楼、15#楼骨灰存放楼、16#遗体焚化楼、17#法医尸检楼、18、19#祭祀品用房、20#车库框架结构施工图,其中,1~12#悼念厅为地上2层,高度8.6米,基础形式为机械钻孔桩基础,结构体系为框架结构。13#逝者家属服务综合楼为地上3层,高度13.7米,基础形式为机械钻孔桩基础,结构体系为框架结构。14#孝文化展示综合楼为地上2层,高度8.6米,基础形式为机械钻孔桩基础,结构体系为框架结构。15#楼骨灰存放楼为地上2层,高度9.5米,基础形式为机械钻孔桩基础,结构体系为框架结构。16#遗体焚化楼为地上2层,高度9.5米,基础形式为机械钻孔桩基础,结构体系为框架结构。17#法医尸检楼为地上1层,高度5.0米,基础形式为机械钻孔桩基础,结构体系为框架结构。18、19#祭祀品用房为地上1层,高度5.4米,基础形式为筏板基础,结构体系为框架结构。20#车库为地下1层,高度-8.7米,基础形式为机械钻孔桩基础,结构体系为框架结构。图纸内容含结构设计总说明、基础说明、基础结构平面布置图、基础梁配筋图、柱子结构平面布置图、梁,板配筋图、楼梯及结构大样等及计算书。








打开系统设
执行注册

