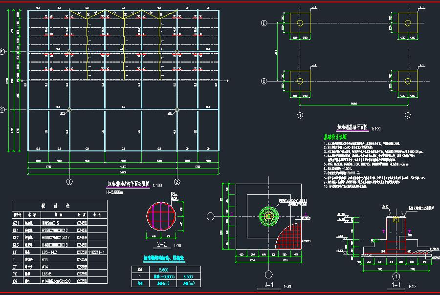
说明:某机场配套设施结构施工图,包含机场综合楼、供水站、污水处理及垃圾转运站、大门及门卫值班室、安检值班室、消防综合楼A,B,C、使用油库、地面加油站、中心变电站、职工生活用房。其中,机场综合楼为地上2层,高度8.85米,基础类型为独立基础 桩基础,结构形式为框架结构。供水站为地上1层,地下1层,高度4.05米,基础类型为独立基础/筏板基础,结构形式为框架结构。污水处理及垃圾转运站为地上1层,地下1层,高度4.35米,基础类型为筏板基础,结构形式为框架结构。大门及门卫值班室为地上1层,高度3.6米,基础类型为条形基础,结构形式为砌体结构。安检值班室为地上1层,高度3.6米,基础类型为条形基础,结构形式为砌体结构。消防综合楼A为地上2层,高度10.05米,基础类型为独立基础 桩基础,结构形式为框架结构。消防综合楼B为地上2层,高度9.05米,基础类型为独立基础 桩基础,结构形式为框架结构。消防综合楼C为地上1层,高度6.45米,基础类型为独立基础 桩基础,结构形式为框架结构。综合业务用房为地上1层,高度3.75米,基础类型为独立基础,结构形式为框架结构。 油车库为地上1层,高度5.6米,基础类型为独立基础,结构形式为框架结构。地面加油站为地上1层,高度3.5米,基础类型为墙下条形基础,结构形式为砌体结构。中心变电站为地上1层,高度4.5米,基础类型为独立基础,结构形式为框架结构。职工生活用房为地上2层,高度7.65米,基础类型为独立基础,结构形式为框架结构。图纸内容含机场航站区总图、道路围界详图、管线综合图、结构设计说明、基础平面布置图、基础说明及大样、框架柱平法施工图、结构平布置及板配筋图、梁平法施工图、楼梯详图、砌体结构说明、钢框架结构说明、站房结构施工图、加油棚结构施工图、钢节点大样、23立方埋地卧式油罐基础结构图、钢结构节点大样、小型构筑物结构图、防火提、隔堤及过桥结构图、供电管网结构施工图等以及计算工书。








打开系统设
执行注册

