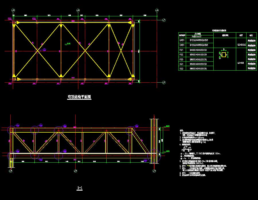
说明:该项目为某商业中心01-01地块,裙房及B座塔楼、地下室部分结构专业施工图,裙房建筑层数:地上4层,主要功能为商业(含餐饮、影院等),高度:25米(最高),结构体系:框架-剪力墙结构;办公楼B座,高度:210.7米,结构体系:框架—核心筒结构;地下室,地下四层,为车库及相关设备用房,结构体系:框架-剪力墙结构。图纸内容含:钢筋混凝土结构设计总说明、钢结构设计总说明、混凝土结构通用节点大样图、宽扁梁构造详图、型钢混凝土柱柱脚连接节点、叠合柱柱脚连接节点、叠合柱与混凝土梁连接节点结构详图、标准详图-SRC梁柱节点构造、钢结构通用节点图、型钢混凝土连梁、型钢混凝土梁柱连接节点图、钢筋桁架楼承板设计说明及构造详图、梁梁连接节点图、钢梁与混凝土梁连接节点图、钢管混凝土柱节点图、型钢混凝土柱节点图、斜柱节点图、吊柱节点图、钢结构节点图、墙柱定位组合图、墙柱定位图、墙柱配筋图、结构平面组合图、结构平面图、梁配筋组合图、梁配筋图、板配筋组合图、板配筋图、穹顶结构平面图、穹顶桁架节点图、裙房钢连桥结构平面图、裙房钢连桥节点图、楼梯详图、墙身大样图、地下层墙柱定位组合图、墙柱定位图、地下层墙柱配筋图、外墙配筋大样图、地下四层墙柱留洞定位组合图、地下层结构平面图、地下层结构平面组合图、梁配筋组合图、梁配筋图、板配筋组合图、板配筋图、坡道详图、楼梯详图、人防楼梯详图、地下室剖面图、人防口部大样图、人防节点详图、人防墙及门框墙配筋大样图、人防主要出入口防倒塌棚架结构图、地下室底板组合平面图、地下室底板组合配筋图、承台大样图、柱墩及承台配筋图、集水井及底板大样图、地下室基础及锚杆平面图、地下室底板后浇带平面图、机械成孔灌注桩设计说明、抗拔锚杆设计说明、桩基平面图。








打开系统设
执行注册

