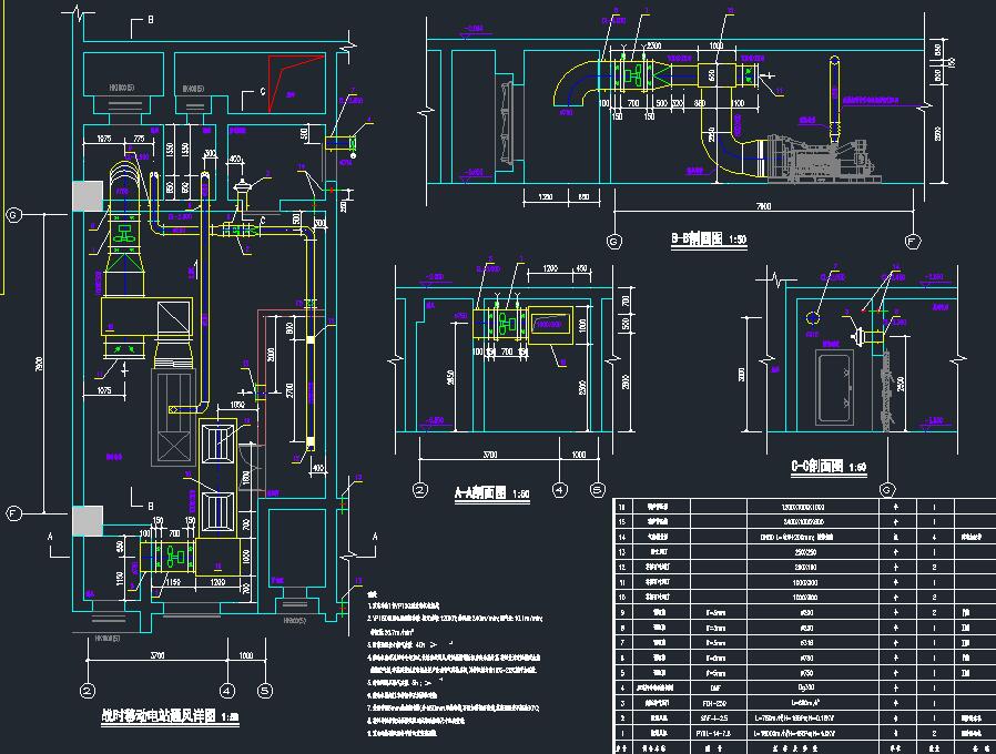
说明:某12层商业快捷酒店及地下室人防通风排烟施工图,地上12层,地下1层,建筑高度为39.15米。设计内容含防排烟系统、通风系统。图纸内容含通风防排烟设计说明、各层平面图、绿色设计专篇、正压送风系统图、地下室排风机房大样图、人防地下室通风排烟施工说明、空调通风图例、主要设备材料表、地下室平时,战时通风平面图、地下室预埋管平面图、第一,第二防火分区进,排风机房详图、A,B防护单元进,排风口部详图、战时移动电站通风详图、人防通风系统及通风方式转换说明、预埋管详图、江苏省居住建筑施工图绿色设计专篇(暖通空调)等。








打开系统设
执行注册

