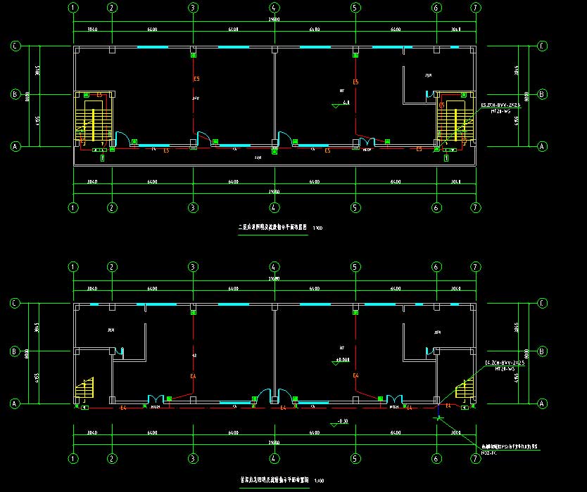
说明:该项目为某幼儿园1、2、3号楼室内装修消防工程电气施工图,原建筑一号楼为地上3层,占地面为654平方米,建筑面积为1962.23平方米,建筑高度为10.6米;原建筑二号楼为地上2层,占地面为286.82平方米,建筑面积为533.54平方米,建筑高度为7.4米;原建筑三号楼为地上2层,占地面为93.50平方米,建筑面积为187平方米,建筑高度为7.4米。每层为独立防火分区,钢筋混凝土结构,耐火等级为二级。图纸内容含:建筑电气施工设计说明,消防应急照明和疏散指示系统设计说明,火灾自动报警及消防控制系统说明,配电干线系统图,配电系统图,配电平面图,室外地下消防泵房配电平面图,室外门卫室配电平面图,消防应急照明和疏散指示配电示意图,应急照明及疏散指示平面布置图,火灾自动报警平面图。








打开系统设
执行注册

