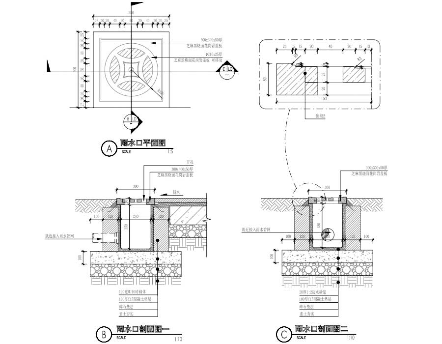
说明:该项目为某公馆一期公共区景观施工设计,图纸内容含:施工图土建说明、景观给排水设计说明、给排水详图、景观电气设计说明、电气详图、结构设计说明、灯具及给排水符号简写、物料表、绿化施工图说明、茶堂中心区域苗木表、分区总平面图、茶堂中心区域索引平面图、茶堂中心区域定位平面图、茶堂中心区域竖向平面图、茶堂中心区域物料平面图、茶堂中心区域灯位平面图、茶堂中心区域给排水平面图、茶堂中心区域植栽总图、茶堂中心区域上木图、茶堂中心区域下木图、水系索引平面图、水系网格定位平面图、水系结构定位平面图、标准人行道详图、隐形消防通道详图、标准雨水口详图、快速取水口、绿地排水详图、标准种植槽排水详图、标准检查井盖详图、标准绿地检修口详图、旱溪标准做法、花街铺地详图、园路铺装大样图、干挂及湿挂石材标准做法详图、墙体工程标准节点做法详图、通用栏杆详图、草坪灯、高杆灯示意图、插泥灯示意图、水底明装灯示意图、地埋灯示意图、迎波台铺装详图、沁水台铺装详图、观鱼台铺装详图、节点铺装详图、儿童活动场地铺装详图、峰石选型大样图、疏散楼梯详图、种植池详图、对景矮墙详图、翠波亭详图、紫藤架详图、假山跌水详图、引静桥详图、水系详图、景观给水设计说明及大样图、茶堂中心区域给水平面图、茶堂中心区域排水平面图、景观水系给排水详图、景观水系大样图、景观电气设计说明及系统图、茶堂中心区域电气平面图、景观电气大样图、翠波亭结构图、紫藤架结构图、假山结构图、水系结构图。
            
                
                
                        
                        







打开系统设
执行注册

            
            