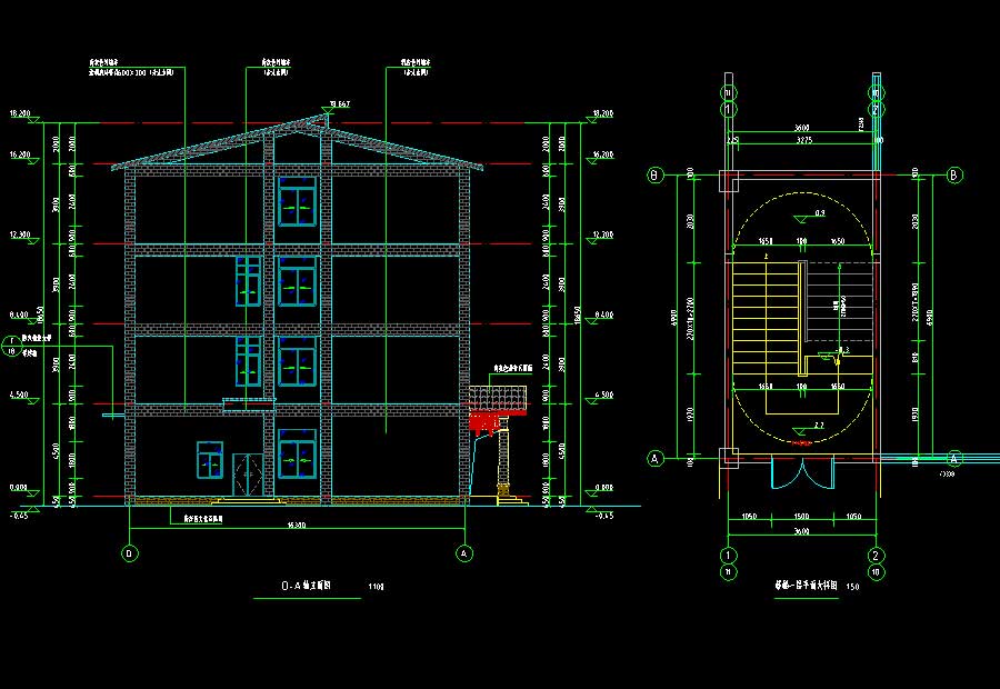
说明:某多层宿舍楼全专业施工图,抗震设防烈度为7度,主要结构形式为框架结构,建筑高度为17.65米(不含局部突出标高),地上层数4层,总建筑面积为2375.95平方米。图纸内容含:建筑说明,节能设计专篇,平面图,立面图,剖面图,楼梯大样图,卫生间、淋浴间平面大样图,套房户型大样图,宿舍户型大样图,屋脊大样图,檐口大样图,无障碍坡道扶手详图,厨房排水沟大样,售菜窗口大样,门头详图,防火挑檐大样图,坡屋面水箱支座图,墙身大样图,门窗大样图;给排水说明,给排水平面图,热水、给水、污水系统展开图,消防系统展开图,消防水箱系统图,给排水大样图;结构说明,基础设计说明与大样图,墩基平面布置图,地梁结构平面图,梁结构平面图,结构平面图,柱结构平面图,楼梯结构图,节点大样图;电气说明,弱电设计说明,配电系统图,电气平面图,屋面层动力平面图,屋顶防雷平面图,接地平面图,弱电系统图,弱电平面图。专业包括建筑、结构、给排水、电气。








打开系统设
执行注册

