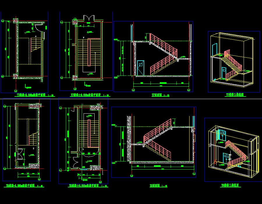
说明:该项目为某市环保生物质热电二期工程建筑、结构、电气、暖通、给排水专业施工图,其中主厂房总建筑面积36226.55平方米,建筑层数为地上6层,地下1层,建筑高度51.8米,现浇钢筋混凝土框架结构;烟囱占地面积81平方米,高110米,主要结构类型为现浇钢筋混凝土简体结构;坡道占地面积1580.09平方米,建筑高度为8.3米,主要结构类型为现浇钢筋混凝土框架 轻钢结构;综合水泵房总建筑面积680平方米,地上1层,地下1层,高6.8米,框架结构;冷却塔占地面积1254.5平方米,高10.3米,框架结构;飞灰固化物养护车间总建筑面积1200平方米,地上1层,高7.8米,钢筋混凝土框架轻钢屋面结构;生活污水处理站总建筑面积189.1平方米,地上1层,地下1层,高7.3米,钢筋混凝土框排架结构;综合处理池总建筑面积5041.02平方米,地上2层,高12.3米,现浇钢筋混凝土框架结构;氨水储存间占地面积119.32平方米,高7.3,米,框架轻钢屋面结构;门卫室一总建筑面积19.7平方米,地上1层,高3.3米,框架结构;门卫室二总建筑面积34.71平方米,地上1层,高3.3米,框架结构;图纸内容含:(主厂房)建筑专业,建筑设计总说明、建筑装修表、室内外装修一览表、防火分区图、建筑平面图、立面图、剖面图、楼梯详图、卫生间详图、门窗表、门窗详图、墙身大样图;(烟囱)建筑总设计说明、建筑设计装修表、各层平面图、三维视图、建筑立面图、三维剖视图、门窗表、门窗大样、区位图、栏杆详图;(坡道)设计总说明、平面图、屋顶平面图、三维图、建筑立面图、剖面图;(综合水泵房)建筑设计总说明、建筑装修做法表、平面图、三维视图、区位图、建筑立面图、剖面图、剖面三维图、门窗表、门窗大样、节点大样;(冷却塔)建筑设计总说明、平面图、三维图、屋面平面图、建筑立面图、剖面图;(固化物车间)建筑设计总说明、装修做法表、建筑平立剖面图、节点详图、门窗表、门窗详图、区位图;(生活污水处理车间)设计总说明、装修做法表、建筑平立剖面图、门窗表、门窗详图、构造详图等等及电气、结构、暖通、给排水专业施工图及暖通、给排水设备表、阀门汇总表、烟囱、主厂房、综合水泵房暖通负荷计算书、综合布线设备表、消防报警设备表等等。








打开系统设
执行注册

