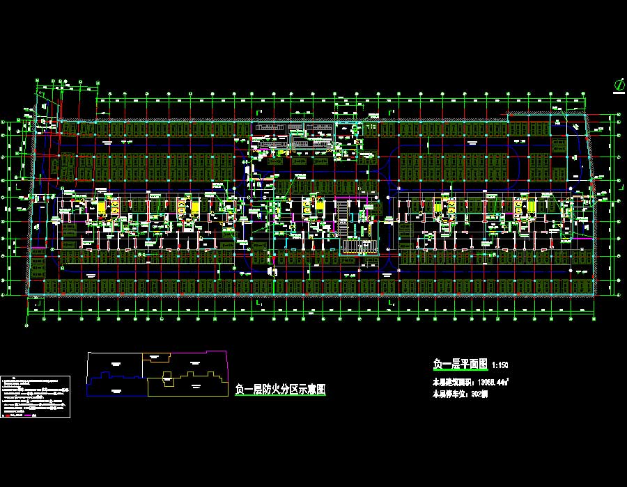
说明:该项目为某别墅区商业城地下车库建筑施工图,总建筑面积地下26194.82平方米,地上18平方米,地下2层,框架结构,停车数量为654辆,防火分区共十个,耐火等级为一级,地下车库全部设自动喷淋灭火系统,图纸内容含:建筑设计总说明、地下一层、二层平面图、地下车库顶板平面图、一层平面图、地下车库剖面图、车道剖面大样图、地下室节点大样图、生活水泵房设备基础布置详图、专用电房、公用电房电缆沟详图、生活泵房详图、风井大样、门窗表、预制钢筋混凝土篦子平面图、配筋图、栏杆水平杆件与墙或柱固定大样、栏杆竖向杆件与梁或板固定大样、扶手转折处平面、防滑条详图、扶手端头固定大样、扶手转折处立面。








打开系统设
执行注册

