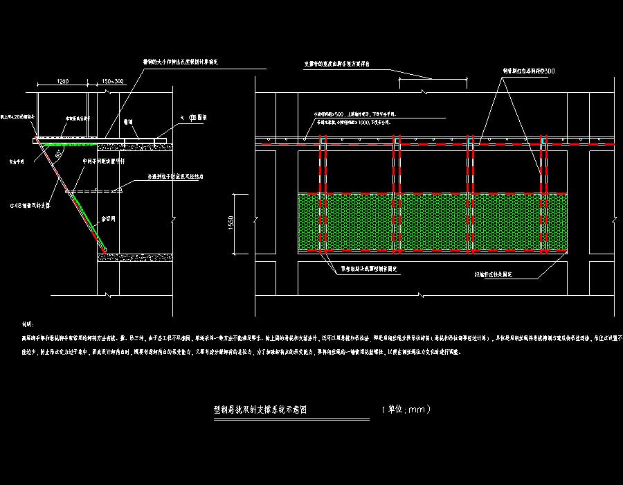
说明:现场安全文明施工标准图,内含:木工棚、钢筋棚做法示意图、和灰机、搅拌机防护棚做法示意图、安全通道示意图(多层24m以下)、安全通道示意图(多层24m以上)、配电箱防雨棚做法示意图、总分箱护栏及地面硬化图、总分箱护栏及硬化地面尺寸图、楼梯、楼层和阳台临边防护示意图、屋面和楼层临边防护图、基坑周边防护栏杆示意图、洞口防护图、电梯井防护图、脚手架搭设安全色踢脚板做法、脚手架内平网设置、脚手架外排阳角处做法示意图、型钢悬挑双斜支撑系统示意图、落地式接料平台、悬挑式钢平台、接料平台防护门正立面图、接料平台防护门侧面图、接料平台平面图、限重牌示意图、轮子锯钢丝网防护板示意图。








打开系统设
执行注册

